EasyManua.ls Logo

ABB ACS880-07CLC

ABB ACS880-07CLC
214 pages
To Next Page IconTo Next Page
To Next Page IconTo Next Page
To Previous Page IconTo Previous Page
To Previous Page IconTo Previous Page
Loading...
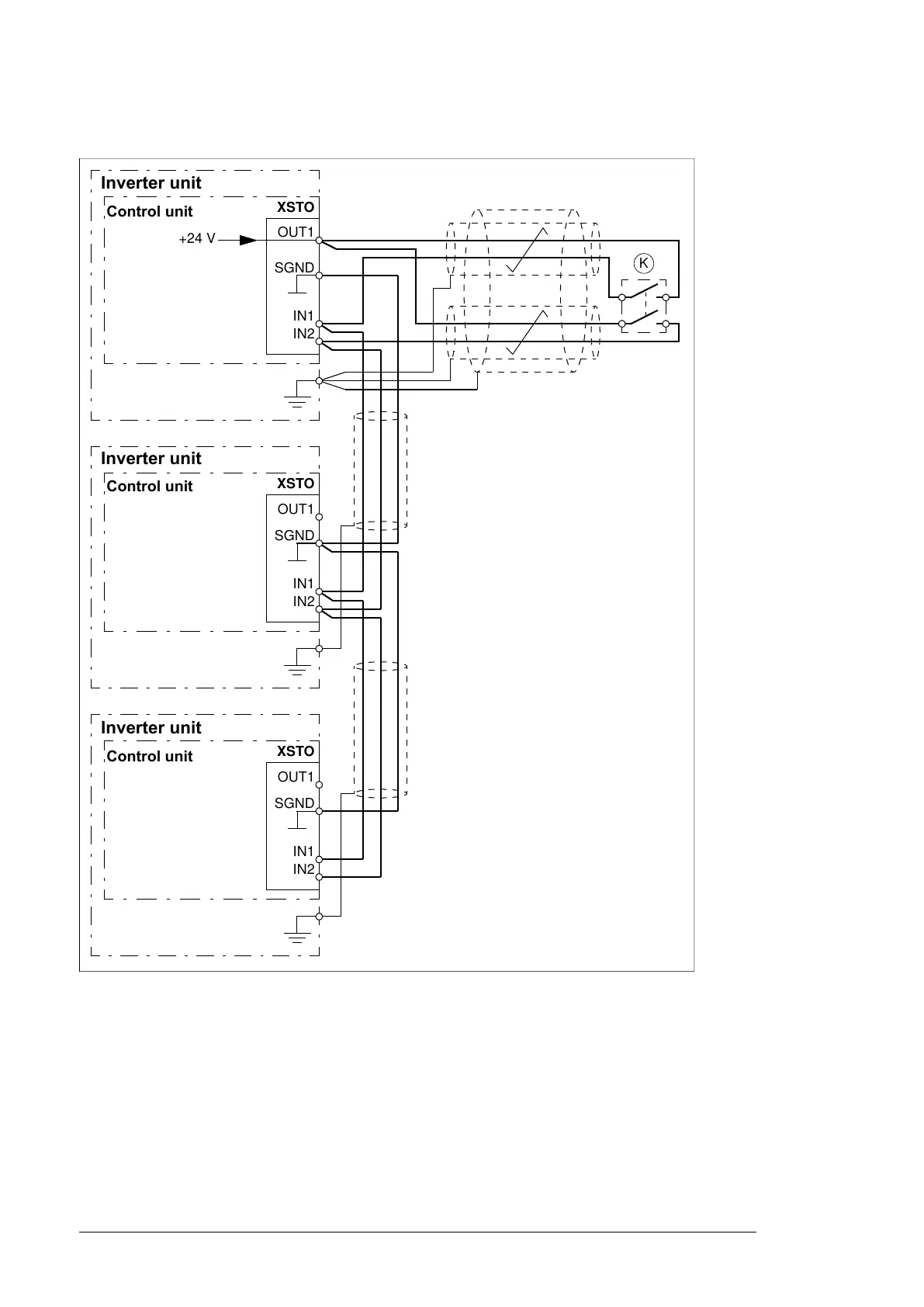
Multiple inverter units (internal power supply)
The Safe torque off function 235
Multiple inverter units (internal power supply)
+24 V
OUT1
SGND
IN1
IN2
OUT1
SGND
IN1
IN2
OUT1
SGND
IN1
IN2
K
XSTO
XSTO
XSTO
Inverter unit
Control unit
Inverter unit
Control unit
Inverter unit
Control unit
194 The Safe torque off function

Table of Contents

Other manuals for ABB ACS880-07CLC

Related product manuals