EasyManua.ls Logo

ABB ACS880-07CLC

ABB ACS880-07CLC
214 pages
To Next Page IconTo Next Page
To Next Page IconTo Next Page
To Previous Page IconTo Previous Page
To Previous Page IconTo Previous Page
Loading...
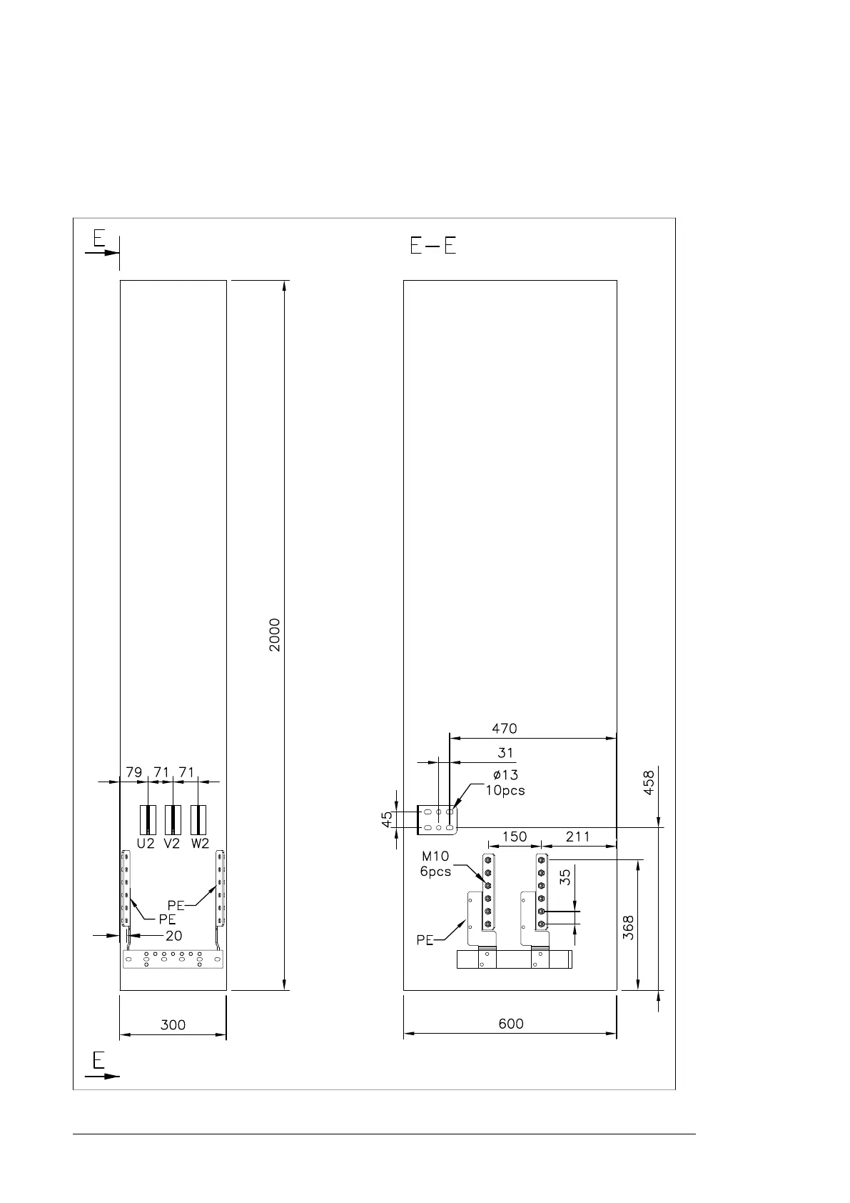
Location and size of output terminals
Units without common motor terminal cubicle
Inverter module cubicle with one R8i module, bottom cable exit
184 Dimensions

Table of Contents

Other manuals for ABB ACS880-07CLC

Related product manuals