EasyManua.ls Logo

ABB ACS880-07CLC

ABB ACS880-07CLC
214 pages
To Next Page IconTo Next Page
To Next Page IconTo Next Page
To Previous Page IconTo Previous Page
To Previous Page IconTo Previous Page
Loading...
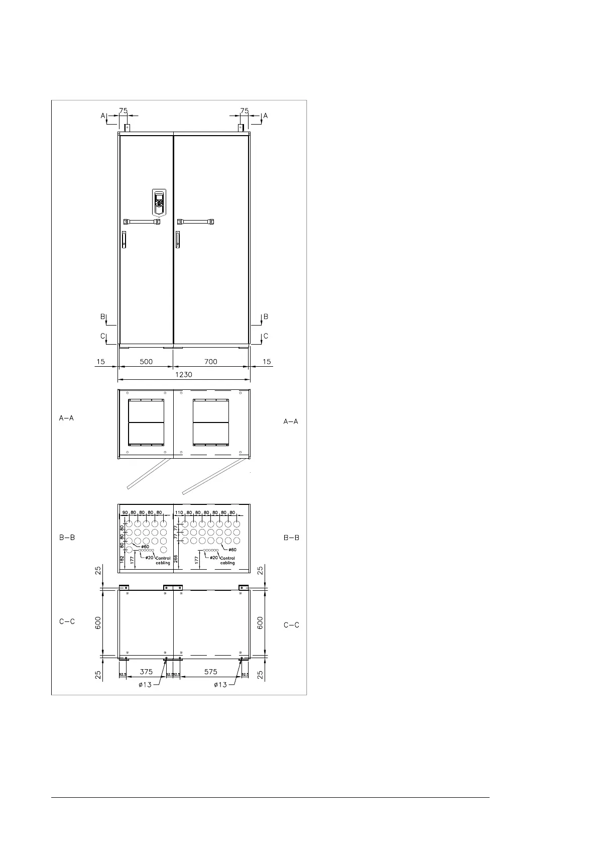
ACS880-07CLC-2180A-7 +C121 (marine construction)
178 Dimensions

Table of Contents

Other manuals for ABB ACS880-07CLC

Related product manuals