EasyManua.ls Logo

ABB ACS880-07CLC

ABB ACS880-07CLC
214 pages
To Next Page IconTo Next Page
To Next Page IconTo Next Page
To Previous Page IconTo Previous Page
To Previous Page IconTo Previous Page
Loading...
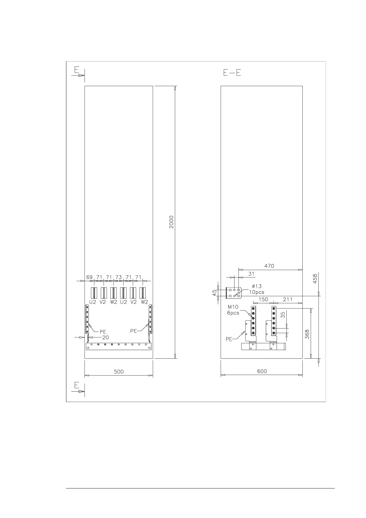
Inverter module cubicle with two R8i modules, bottom cable exit
Dimensions 185

Table of Contents

Other manuals for ABB ACS880-07CLC

Related product manuals