EasyManua.ls Logo

ABB PFEA 112 - Assembly Drawing, 3 BSE019040 D0096, Rev. C

ABB PFEA 112
216 pages
Print Icon
To Next Page IconTo Next Page
To Next Page IconTo Next Page
To Previous Page IconTo Previous Page
To Previous Page IconTo Previous Page
Loading...
Tension Electronics PFEA111/112, User Manual
Appendix C PFTL 301E - Designing the Load Cell Installation
C-14 3BSE029380R0101 Rev C
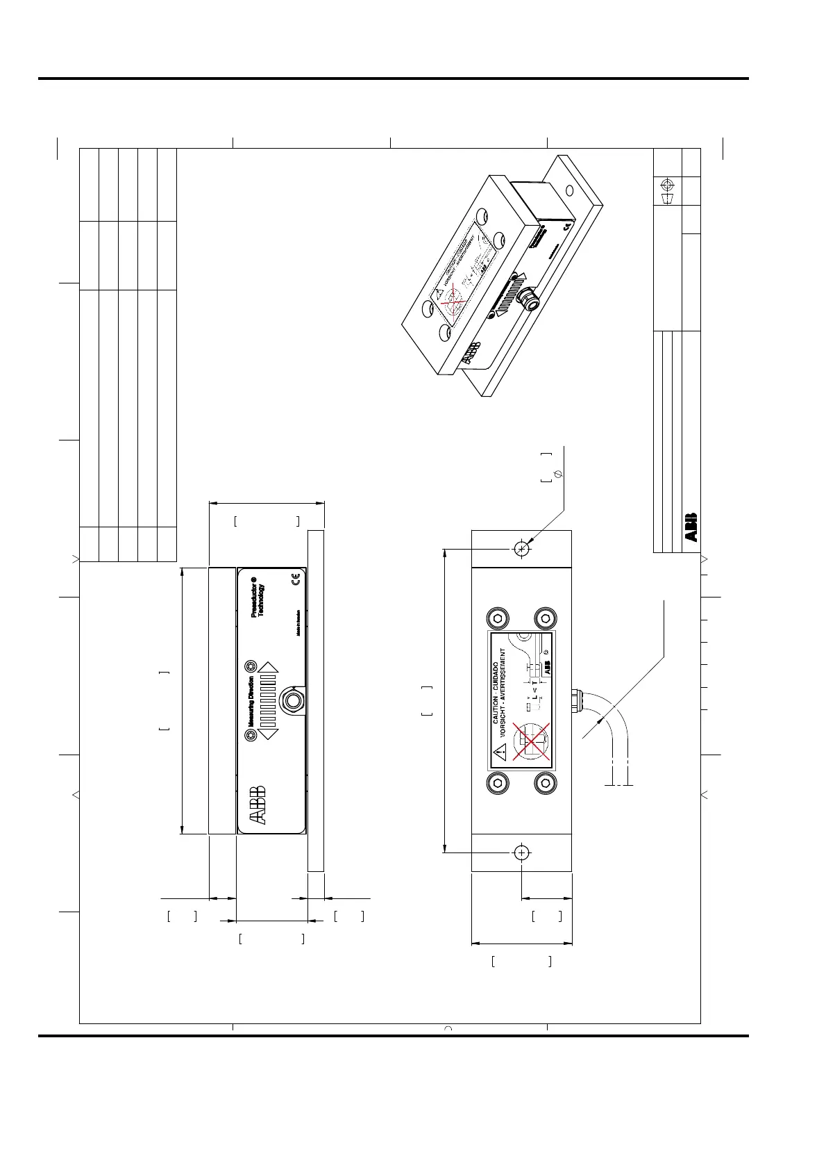
C.12 Assembly Drawing, 3BSE019040D0096, Rev. C
Mass (approx. without cable) : 5 kg.
Dimensions in : mm [inch]
REV DESCRIPTION DATE DEPT./INIT.
- New document 99-07-02 SEAPR/AGB/JRK
A
Thickness and width upper adapterplate was 19 respectively 76
mm.
2000-01-24 SEAPR/AGB/MH
B
Dimension 48 added. Toelerancs added to dimension 67, 77 178
and 228
2001-10-19 SEAPR/AGB/LEN
C
Redrawn in Solid Works and uppdated. Cable min bending radius
added.
2012-12-14 PA/FM/GF/LEN
C
ABB AB
2012-12-14
Cont.sh./
No of sh.
SheetLang. Rev.
Project or order number :
Modify date :
Document number
Appr.
Prep.
Resp.dept
Product type designation :
Product information :
Product family :
2012-12-13 09:25:13
PFTL 301E
661230 Bansp. mätare PRT100
ABB AB
Håkan F Wintzell
2012-12-14Lars-Erik Nilsson
1
1C
en
Assembly PFTL301E
Assembly PFTL301E
Dimension drawing
3BSE019040D0096
PA
PA
PA
FM/GF
FM/GF
FM/GF
Document status:
Approved
Customer reference :
/
/
/
11
0,43
48 ±0,1
1,89 ±0,004
18
0,71
178 ±0,5
7,01 ±0,02
77 ±0,3
3,03 ±0,012
33,5
1,32
67 ±0,5
2,64 ±0,02
2x 9,5
0,37
203
7,99
R 30 min

Table of Contents

Related product manuals