EasyManua.ls Logo

ABB PFEA 112 - Dimension Drawing 3 BSE029997 D0064, Rev. a

ABB PFEA 112
216 pages
Print Icon
To Next Page IconTo Next Page
To Next Page IconTo Next Page
To Previous Page IconTo Previous Page
To Previous Page IconTo Previous Page
Loading...
Tension Electronics PFEA111/112, User Manual
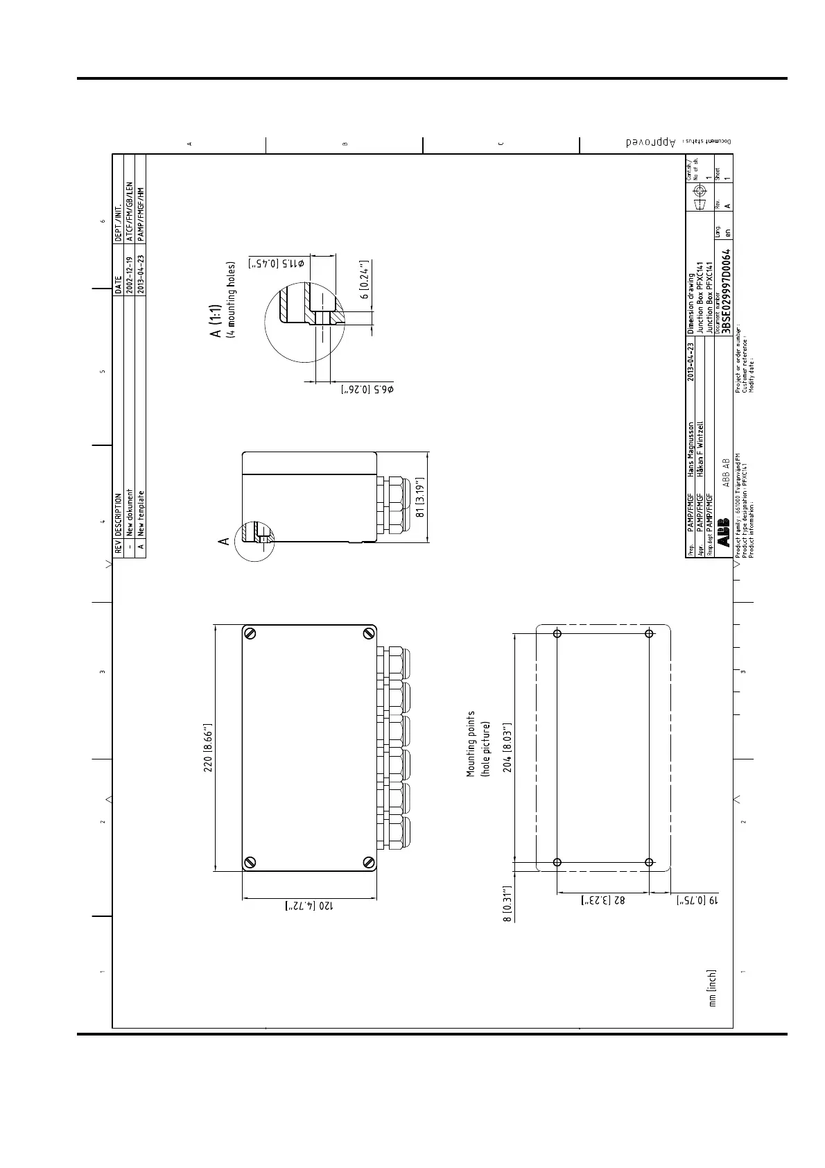
Section A.6.2 Dimension Drawing 3BSE029997D0064, Rev. A
3BSE029380R0101 Rev C A-11
A.6.2 Dimension Drawing 3BSE029997D0064, Rev. A

Table of Contents

Related product manuals