EasyManua.ls Logo

ABB PFEA 112 - Dimension Drawing, 3 BSE006699 D0005, Rev. J

ABB PFEA 112
216 pages
Print Icon
To Next Page IconTo Next Page
To Next Page IconTo Next Page
To Previous Page IconTo Previous Page
To Previous Page IconTo Previous Page
Loading...
Tension Electronics PFEA111/112, User Manual
Appendix F PFCL 201 - Designing the Load Cell Installation
F-18 3BSE029380R0101 Rev C
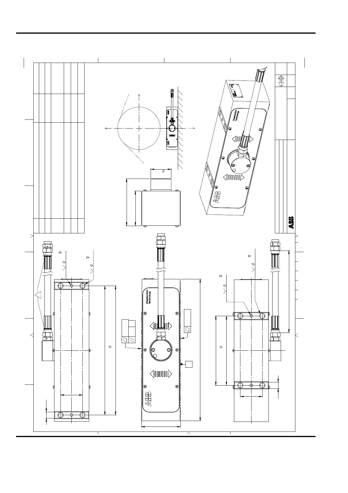
F.14 Dimension Drawing, 3BSE006699D0005, Rev. J
= Force component (not measured).
F
v
= Measured component.
R
F
F
v
F
R
(
F
R
)
450
124,6 ±0,05
0,1 CZ
0,2 A
0,1 CZ
A
110
149
65
70 ±0,4
220 ±0,2
(holes 8)
220 ±0,4
(holes M16)
18 X 90°
2 x M16 25
9 X 90°
2 x Ø8.0 H8 10
20
Max. length: 20m
410 ±0,4
(holes M16)
410 ±0,2
(holes 8)
70 ±0,4
18 X 90°
4 x M16 25
9 X 90°
2 x Ø8.0 H8 10
20
J
REV DESCRIPTION DATE DEPT./INIT.
E Dimension 450±0.1 was 450±0.2 2005-01-28 ATPA/FM/GF/LEN
F Max length 20m was 10m. 2007-08-21 PA/FM/GF/BS
G
View A added. Views in sheet 2 were in sheet 1. Holes Ø8.0
added. Hole callout M16 adjusted. Hidden edges removed.
Geometric tolerances added. Dimensions adjusted.
2011-12-29 PA/FM/GF/ML
H New connection box design. 2014-05-06 PAMP/FMGE/TP
I Administrative adjustment. 2014-09-29 PAMP/FMGE/TP
J Adapter added 2015-12-17 PAMP/OE/SF
C
ABB AB
2015-12-17
Cont.sh./
No of sh.
SheetLang. Rev.
Project or order number :
Modify date :
Document number
Appr.
Prep.
Resp.dept
Product type designation :
Product information :
Product family :
PFCL201
661130 Bansp.mätare VPBT/HPBT
ABB AB
Mattias Moren
2015-12-17Sven Fischer
1
1J
en
Lastcell PFCL 201CE
Load cell PFCL 201CE
CAD outline drawing
3BSE006699D0005
PAMP
PAMP
PAMP
SV
FMSE
FMGE
Document status:
Approved
Customer reference :
/
/
/

Table of Contents

Related product manuals