EasyManua.ls Logo

ABB PFEA 112 - Dimension Drawing, 3 BSE004196, Rev. C

ABB PFEA 112
216 pages
Print Icon
To Next Page IconTo Next Page
To Next Page IconTo Next Page
To Previous Page IconTo Previous Page
To Previous Page IconTo Previous Page
Loading...
Tension Electronics PFEA111/112, User Manual
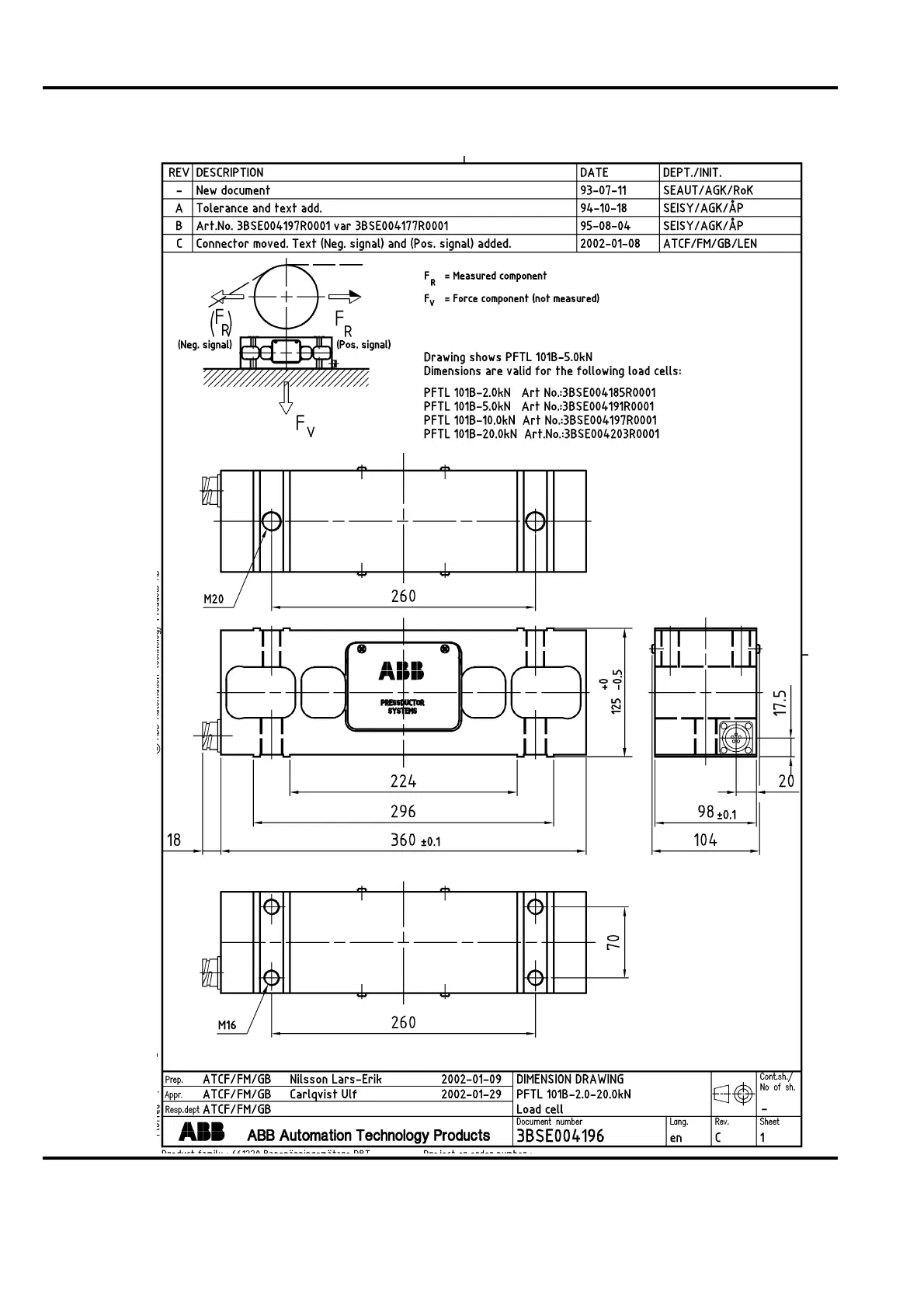
Appendix E PFTL 101 - Designing the Load Cell Installation
E-18 3BSE029380R0101 Rev C
E.15 Dimension Drawing, 3BSE004196, Rev. C

Table of Contents

Related product manuals