EasyManua.ls Logo

ABB PFEA 112 - Routing the Load Cell Cable

ABB PFEA 112
216 pages
Print Icon
To Next Page IconTo Next Page
To Next Page IconTo Next Page
To Previous Page IconTo Previous Page
To Previous Page IconTo Previous Page
Loading...
Tension Electronics PFEA111/112, User Manual
Section E.7.1 Routing the Load Cell Cable
3BSE029380R0101 Rev C E-9
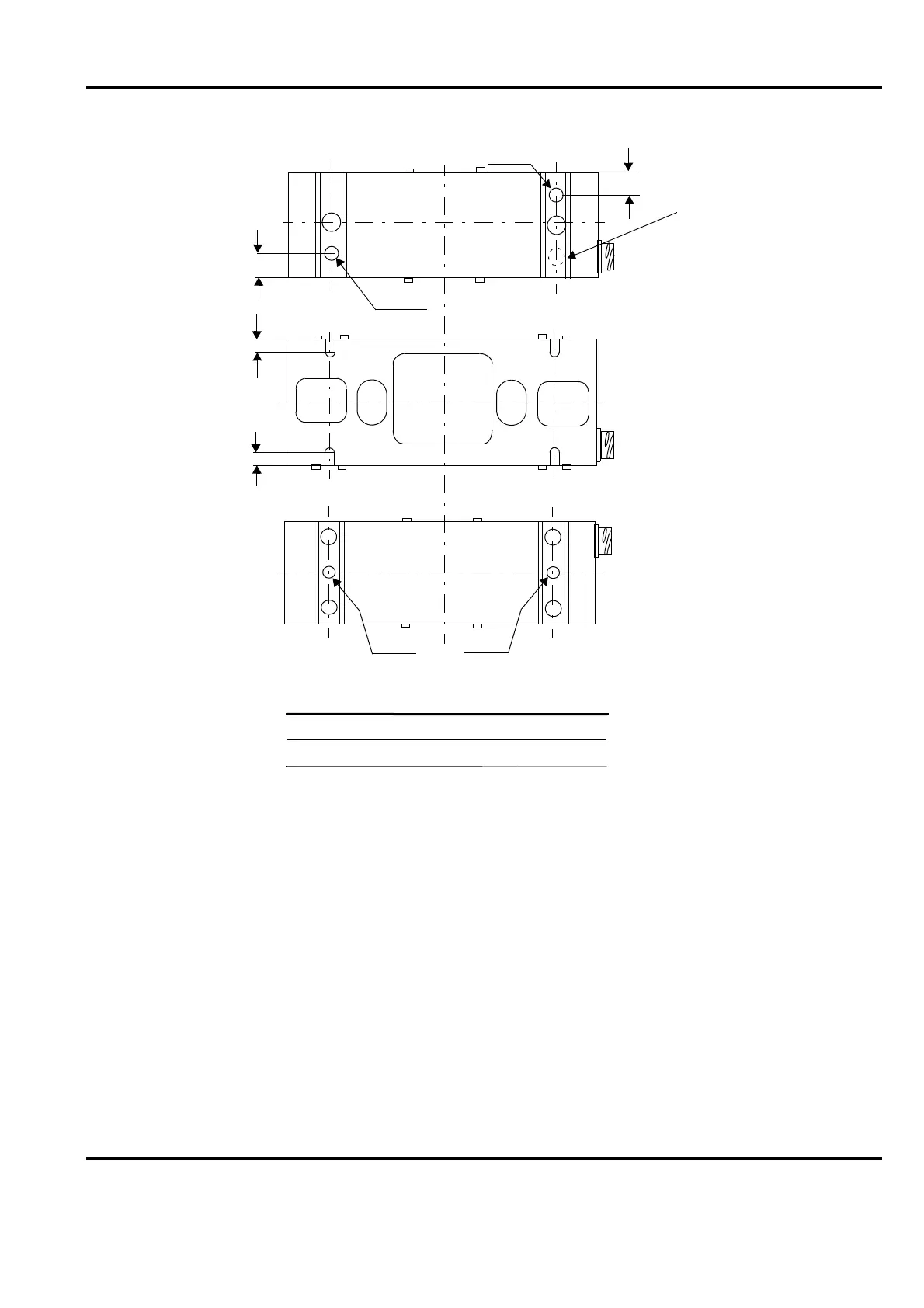
Figure E-3. Drilling Dowel Pin Holes
E.7.1 Routing the Load Cell Cable
The cable must be supported with clamps and routed to prevent force shunting through the
cable.
c
c
b
b
NOTE
Do not drill in this
a
B/BE/BER
Tubular
dowel pin
a
a
a
Load cell PFTL 101
ab c
A/AE/AER 8
15
15
15
12
20
8.4
12.5
area, as internal
wiring may be
damaged.

Table of Contents

Related product manuals