EasyManua.ls Logo

ABB PFEA 112 - Dimension Drawing, 3 BSE006699 D0006, Rev

ABB PFEA 112
216 pages
Print Icon
To Next Page IconTo Next Page
To Next Page IconTo Next Page
To Previous Page IconTo Previous Page
To Previous Page IconTo Previous Page
Loading...
Tension Electronics PFEA111/112, User Manual
Section F.13 Dimension Drawing, 3BSE006699D0006, Rev. -
3BSE029380R0101 Rev C F-17
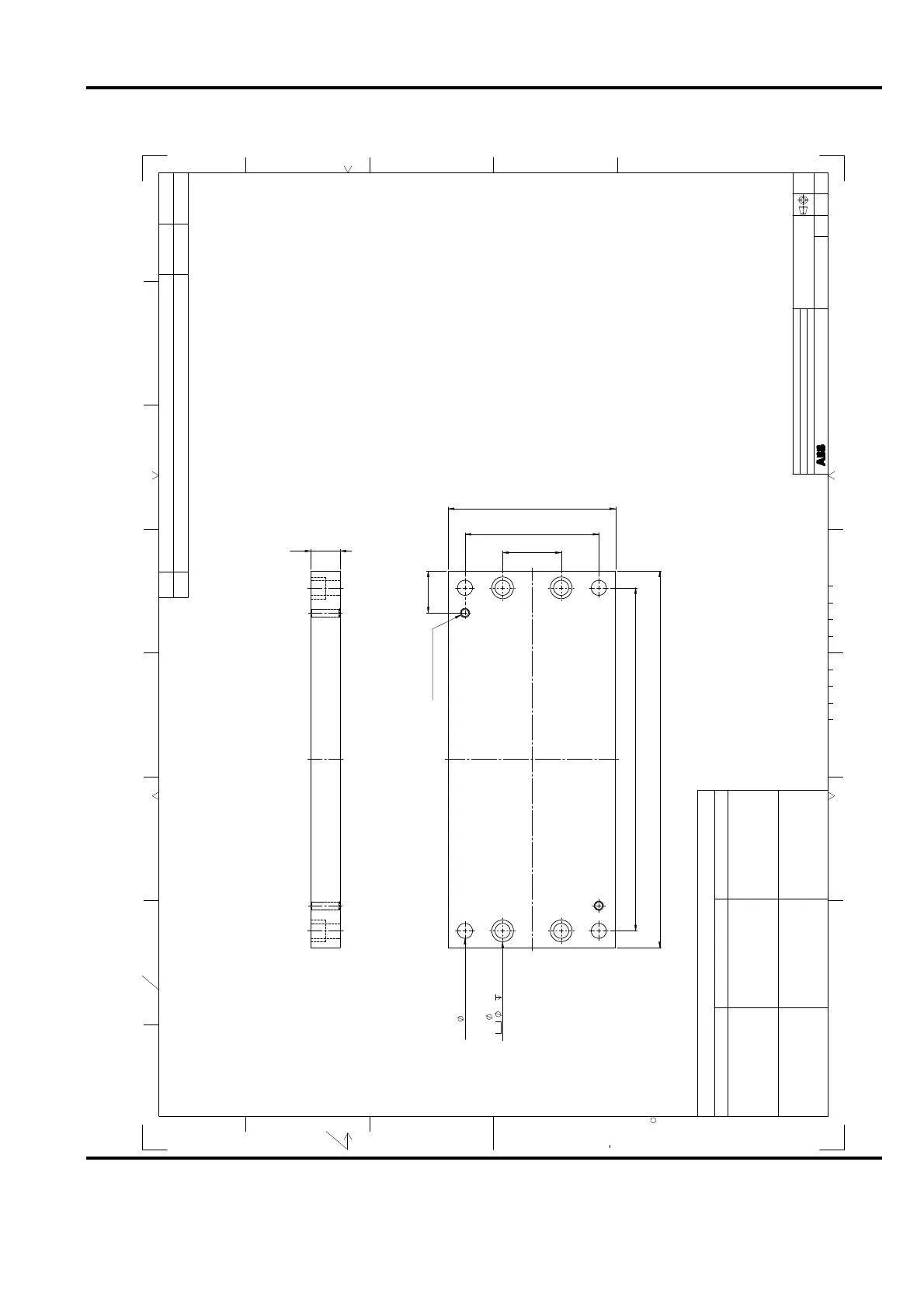
F.13 Dimension Drawing, 3BSE006699D0006, Rev. -
Lower adapter plate for:
PFCL 101 A
PFCL 101 AE
PFCL 201 C
PFCL 201 CD
PFCL 201 CE
Manufacturing drawing: 3BSE030638D3001
Mass (weight): App. 24kg
REV DESCRIPTION DATE DEPT./INIT.
- New document. Replaces 3BSE006699D0004 part 002 2013-01-17 PA/FM/GF/SF
Technical material
Material description Material specification Material designation
Steel, through
hardened
Hardness 300-400 HB
Yield stress > 500MPa (N/mm²)
CTE 11-13 μm/m/°C
Remanent magnetism of
finished detail must be less
than 2 Gauss (0-0,2mT)
34CrNiMo6+QT900
Toolox 33, Toolox 44
S690(+QT)
W.nr. 1.6582+QT900
ASTM 4340
or equivalent
Martensitic stainless
Steel
Hardness 300-400 HB
Yield stress > 400MPa (N/mm²)
CTE 11-13 μm/m/°C
Remanent magnetism of
finished detail must be less
than 2 Gauss (0-0,2mT)
X12CrMoS13+AT
X20Cr13+A
W.nr.1.4005+AT, 1.4021+A
ASTM 416, 420
or equivalent
!
!!
!
"
""
"
!
!!
!
C
duction, use or disclosure to third parties
without express authority is strictly forbidden.
ABB AB
We reserve all rights in this document and
in the information contained therein. Repro-
"
""
"
2013-01-17
Cont.sh./
No of sh.
SheetLang. Rev.
Project or order number :
Modify date :
Document number
Appr.
Prep.
Resp.dept
Product type designation :
Product information :
Product family :
661130 Bansp.mätare VPBT/HPBT
ABB AB
Håkan F Wintzell
2013-01-17Sven Fischer
1
1-
en
Ned.adapterplatta PFCL lastcell
Low.adapter plate PFCL loadcell
Dimension drawing
3BSE006699D0006
PA
PA
PA
FM/GF
FM/GF
FM/GF
Document status:
Approved
/
/
/
Customer erference :
450
410
70
160
200
(4x) 18 THRU
26
18
(4x) 18 THRU
50
for lifting eye bolt
(2x) M10
35

Table of Contents

Related product manuals