EasyManua.ls Logo

ABB PFEA 112 - Dimension Drawing, 3 BSE008723, Rev. D

ABB PFEA 112
216 pages
Print Icon
To Next Page IconTo Next Page
To Next Page IconTo Next Page
To Previous Page IconTo Previous Page
To Previous Page IconTo Previous Page
Loading...
Tension Electronics PFEA111/112, User Manual
Section G.11 Dimension Drawing, 3BSE008723, Rev. D
3BSE029380R0101 Rev C G-15
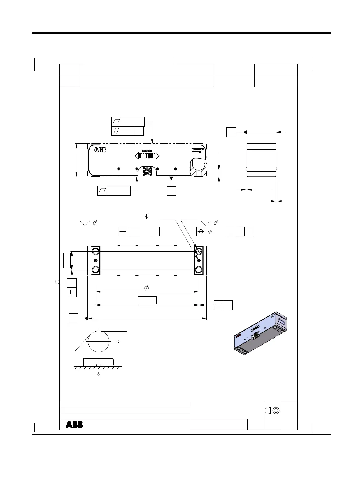
G.11 Dimension Drawing, 3BSE008723, Rev. D
7UDQVYHUVHIRUFHFRPSRQHQW
QRWPHDVXUHG
5
)
)
)
)
9
0HDVXUHGIRUFHFRPSRQHQW
9
5
General tolerances according to SS-ISO2768-m
REV DESCRIPTION DATE DEPT./INIT.
D
Redrawn and uppdated in Solid Works. Previous revision table
remowed, exist on revision C.
2011-12-14 PA/FM/GF/LEN
C
duction, use or disclosure to third parties
without express authority is strictly forbidden.
ABB AB
We reserve all rights in this document and
in the information contained therein. Repro-
PA
PA
PA
3BSE008723
Dimension drawing
Load Cell PFTL201-C
Lastcell PFTL201-C
en
D
1
1
Lars-Erik Nilsson 2011-12-14
Håkan F Wintzell
ABB AB
661130 B ät VPBT/HPBTPd tf il
Resp.dept
Prep.
Appr.
Document number
Pjt d b
Rev.Lang. Sheet
No of sh.
Cont.sh./
2012-02-15
FM/GF
FM/GF
FM/GF
Approved
Document status:
/
/
/
125 - 0,2
0
25
0,1 CZ
0,1 CZ
0,2 A
A
110 ±0,5
4 max
4 max
C
70
390
(For holes 8) 390 ±0,1
450 ±0,2
9 X 90°, Near Side
4 x Ø8.0 0
+0,058
DRILL 10
26 X 90°, Near Side
8 x M24 - 6H
0,2 B C 0,4 A BC
C
B
B

Table of Contents

Related product manuals