EasyManua.ls Logo

ABB PFEA 112 - Dimension Drawing, 3 BSE006699 D0003, Rev. F

ABB PFEA 112
216 pages
Print Icon
To Next Page IconTo Next Page
To Next Page IconTo Next Page
To Previous Page IconTo Previous Page
To Previous Page IconTo Previous Page
Loading...
Tension Electronics PFEA111/112, User Manual
Section F.11 Dimension Drawing, 3BSE006699D0003, Rev. F
3BSE029380R0101 Rev C F-15
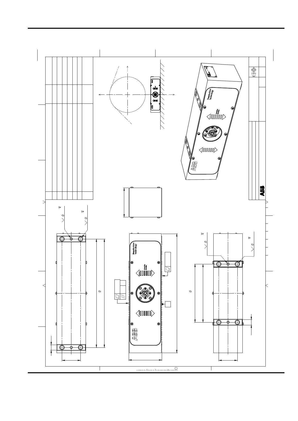
F.11 Dimension Drawing, 3BSE006699D0003, Rev. F
REV DESCRIPTION DATE DEPT./INIT.
- New document 1994-11-11 SEISY/AGK/IL
A Dimension-, shape- and positional tolerances added. 1999-02-17 SEAPR/AGK/RL
B 125 (+0, -0.2) was 125±0.2; Flatness tol. 0.02 was 0.1; 1995-05-03 SEAPR/AGK/ML
C New product name, new tolerances. 2000-12-18 SEAPR/AGV/AB
D Dimension 450±0.1 was 450±0.2. 125+0/-0.2 was 125±0.1 2005-01-28 ATPA/FM/GF/LEN
E Dimension 124.6±0.05 was 125+0/-0.2 2005-09-26 ATPA/FM/GF/LEN
F
View A added. Views in sheet 2 were in sheet 1. Holes Ø8.0 added.
Hole callout M16 adjusted. Hidden edges removed. Geometric
tolerances added. Dimensions adjusted.
2011-12-27 PA/FM/GF/ML
C
ABB AB
without express authority is strictly forbidden.
2012-01-13
Cont.sh./
No of sh.
SheetLang. Rev.
Project or order number :
Modify date :
Document number
Appr.
Prep.
Resp.dept
Product type designation :
Product information :
Product family :
2012-01-04 14:13:56
PFC100
661130 Bansp.mätare VPBT/HPBT
ABB AB
Håkan F Wintzell
2012-01-11Magnus X Lindström
1
1F
en
Lastcell PFCL 201C
Load cell PFCL 201C
Dimension drawing
3BSE006699D0003
PA
PA
PA
PA/FM/GF
FM/GF
FM/GF
Document status:
Approved
Customer reference :
/
/
/
= Force component (not measured).
F
v
= Measured component.
R
F
F
v
F
R
(
F
R
)
450
124,6 ±0,05
0,1 CZ
0,1 CZ
0,2 A
A
110
18 X 90°
4 x M16
25
9 X 90°
2 x Ø8.0 H8
10
70 ±0,4
220 ±0,4
(holes M16)
220 ±0,2
(holes
8.0)
20
9 X 90°
2 x Ø8.0 H8
10
18 X 90°
4 x M16
25
70 ±0,4
410 ±0,4
(holes M16)
410 ±0,2
(holes
8.0)
20

Table of Contents

Related product manuals