EasyManua.ls Logo

Bosch Rexroth IndraDrive CsDrive System with HCS01 - Nfd03.1

Bosch Rexroth IndraDrive CsDrive System with HCS01
344 pages
To Next Page IconTo Next Page
To Next Page IconTo Next Page
To Previous Page IconTo Previous Page
To Previous Page IconTo Previous Page
Loading...
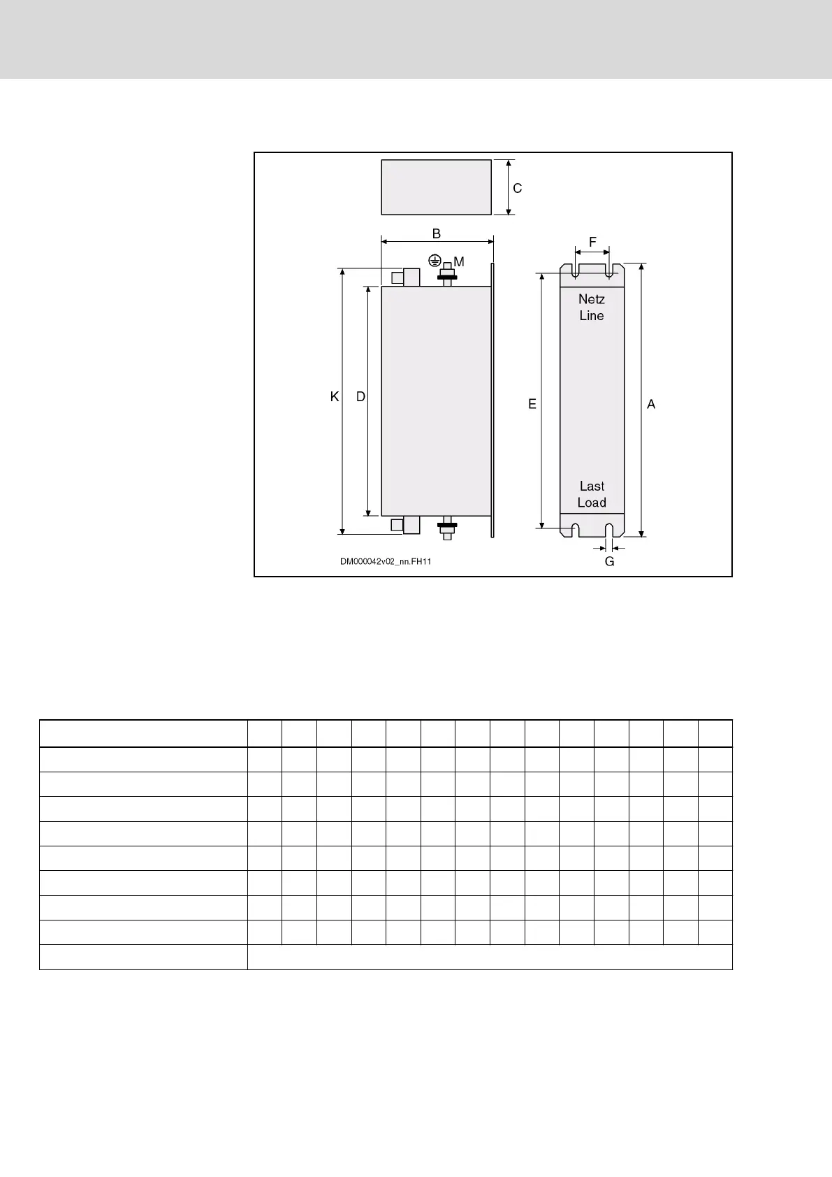
NFD03.1
Fig. 8-46: Three-Phase Current Filter NFD03.1 for Drives
Tolerance limits for NFD03.1:
The dimensions B, C, D, K are maximum values. They can be reduced
up to 15 mm.
The ground studs M can also be arranged horizontally (protruding from
the mounting flange), instead of vertically (as illustrated above).
Mains filter type
A B C D E F G H J K L M
M
AE
M
AKl
NFD 03.1-480-007 190 90 50 160 180 20 5,4 - - 190 - M5 2,2 0,8
NFD 03.1-480-016 250 90 55 220 235 25 5,4 - - 250 - M5 2,2 0,8
NFD 03.1-480-030 270 100 60 240 255 30 5,4 - - 270 - M5 2,2 2
NFD 03.1-480-055 250 105 90 220 235 60 5,4 - - 260 - M6 4 2,2
NFD 03.1-480-075 270 145 90 240 255 60 6,5 - - 280 - M6 4 4,5
NFD 03.1-480-130 270 160 100 240 255 65 6,5 - - 330 - M10 18 8
NFD 03.1-480-180 380 180 130 350 365 102 6,5 - - 455 - M10 18 20
NFE 02.1-230-008 90 210 60 60 80 40 5,3 40 0,75 - 15 10 0,8 0,8
M
AE
Maximum tightening torque of the ground stud in Nm
M
AKl
Maximum tightening torque of the terminal in Nm
Tab. 8-25: Dimensions of the Mains Filters NFD/NFE
Bosch Rexroth AG DOK-INDRV*-HCS01******-PR05-EN-P294/341
Rexroth IndraDrive CsDrive Systems with HCS01
Cables, accessories, additional components

Table of Contents

Related product manuals