EasyManua.ls Logo

Daikin D-BACS - Specification and Dimension

Daikin D-BACS
376 pages
Print Icon
To Next Page IconTo Next Page
To Next Page IconTo Next Page
To Previous Page IconTo Previous Page
To Previous Page IconTo Previous Page
Loading...
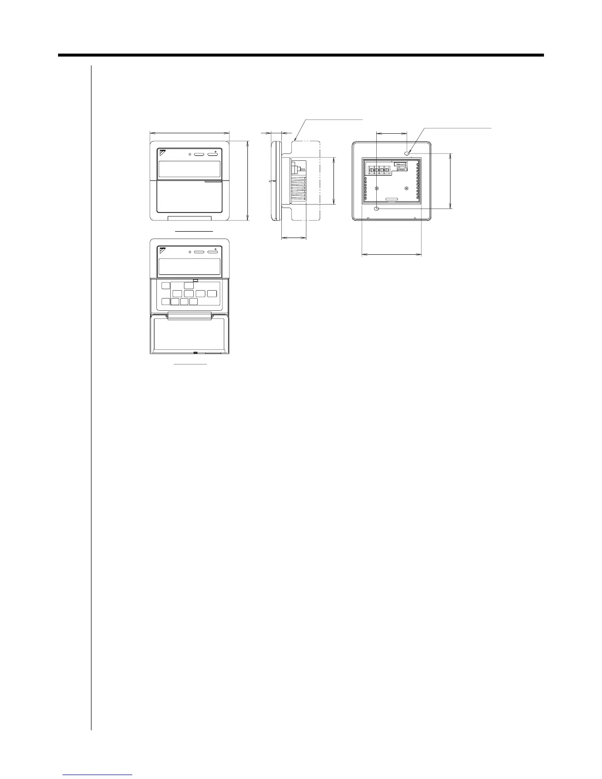
158 3.3 Specification and Dimension
Control Devices
3.3 Specification and Dimension
DST301BA61
3D049544
Door open
F2
2 - 5 × 7 round end slit
D2
Optional switch box
(KJB211A)
F1D1
46
120
120
16.0
90
83.5
71
SCHEDULE TIMER
ALL I
ALL
SCHEDULE TIMER
ALL I
ALL
37
Door closed
DST301BA51 · 61
Unit (mm)

Table of Contents

Related product manuals