EasyManua.ls Logo

Daikin D-BACS - Krp2 A61; Krp2 A62; Krp2 A53; Wiring Adaptor for Electrical Appendices (1)

Daikin D-BACS
376 pages
Print Icon
To Next Page IconTo Next Page
To Next Page IconTo Next Page
To Previous Page IconTo Previous Page
To Previous Page IconTo Previous Page
Loading...
1.2 <KRP2A61 / KRP2A62 / KRP2A53> Wiring Adaptor for Electrical Appendices (1) 277
Adaptor
1.2 <KRP2A61 / KRP2A62 / KRP2A53>
Wiring Adaptor for Electrical Appendices (1)
1.2.1 Function
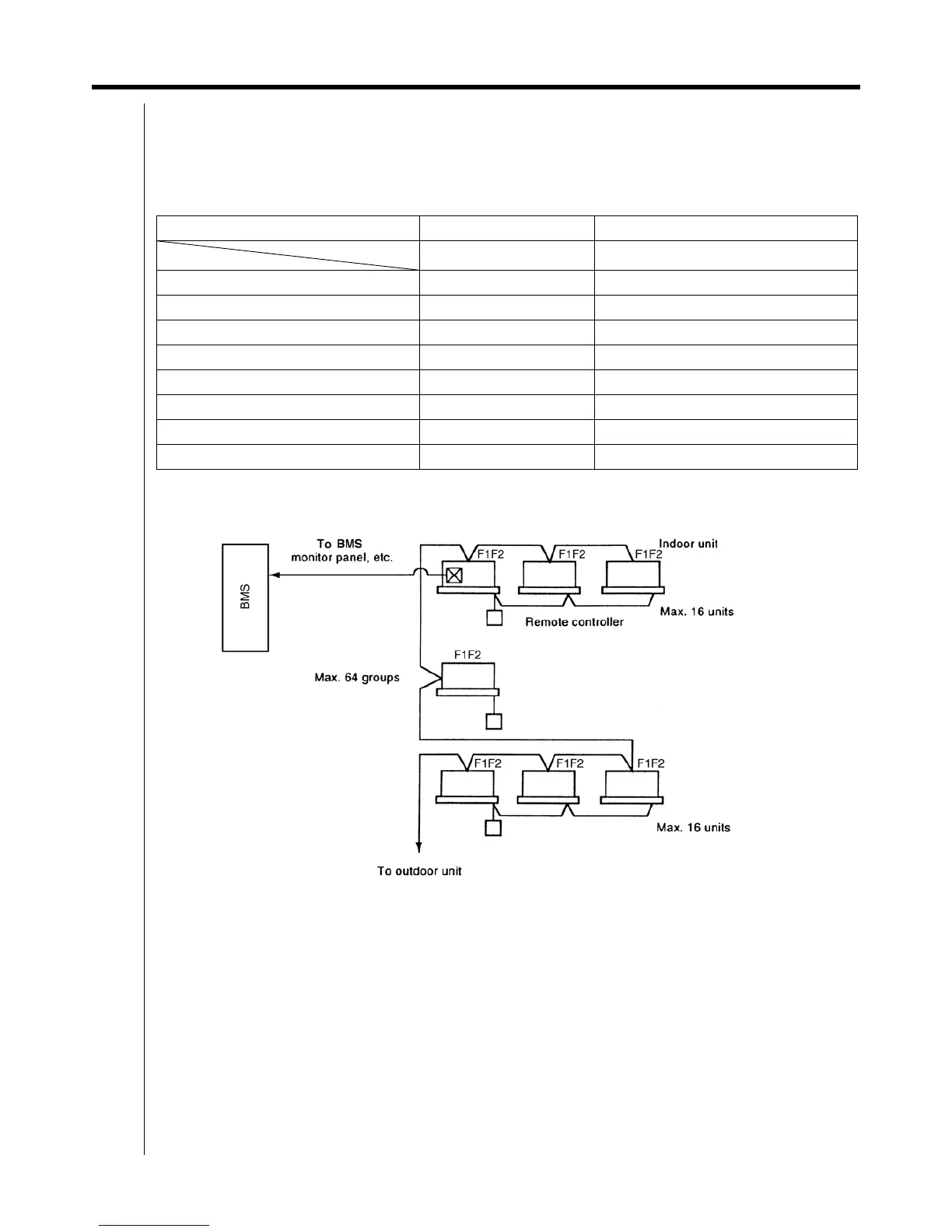
The KRP2A61·62 enables operation by remote control (ON/OFF control, temperature setting, operation display, error
display). With it, the following system can be built.
This adaptor is connected to the centralized line, and "all the air conditioners connected to the central control lines (F1,
F2) are under unified control".
(Unified control of a max. 64 groups of a max. 16 indoor units for each group. But, the max. of indoor units is 128.)
This system requires remote controller switches (For control) at least.
Note:
1. The adaptor cannot be used with other optional controllers for centralized control.
2. Individual indoor units connected to the centralized line cannot be displayed individually on the BMS.
3. It is not necessary to set address No. for centralized control.
(Setting is automatic.)
C : 1PA63641G
Type BRC1C62 KRP2A61/62/53
Group/Zone
Item
One Group Unified control for all Zone
ON/OFF Possible Possible
Temp. setting Possible Possible
Air flow rate setting Possible Impossible
Air flow direction setting Possible Impossible
Timer setting twice a day Possible Impossible
Mode setting Possible Impossible
Filter sign reset Possible Impossible
Inspection/Test operation Possible Operation & Error display only by lamps

Table of Contents

Related product manuals