EasyManua.ls Logo

Daikin D-BACS - Part Names and Functions

Daikin D-BACS
376 pages
Print Icon
To Next Page IconTo Next Page
To Next Page IconTo Next Page
To Previous Page IconTo Previous Page
To Previous Page IconTo Previous Page
Loading...
227
Interface for use in LONWORKS
®
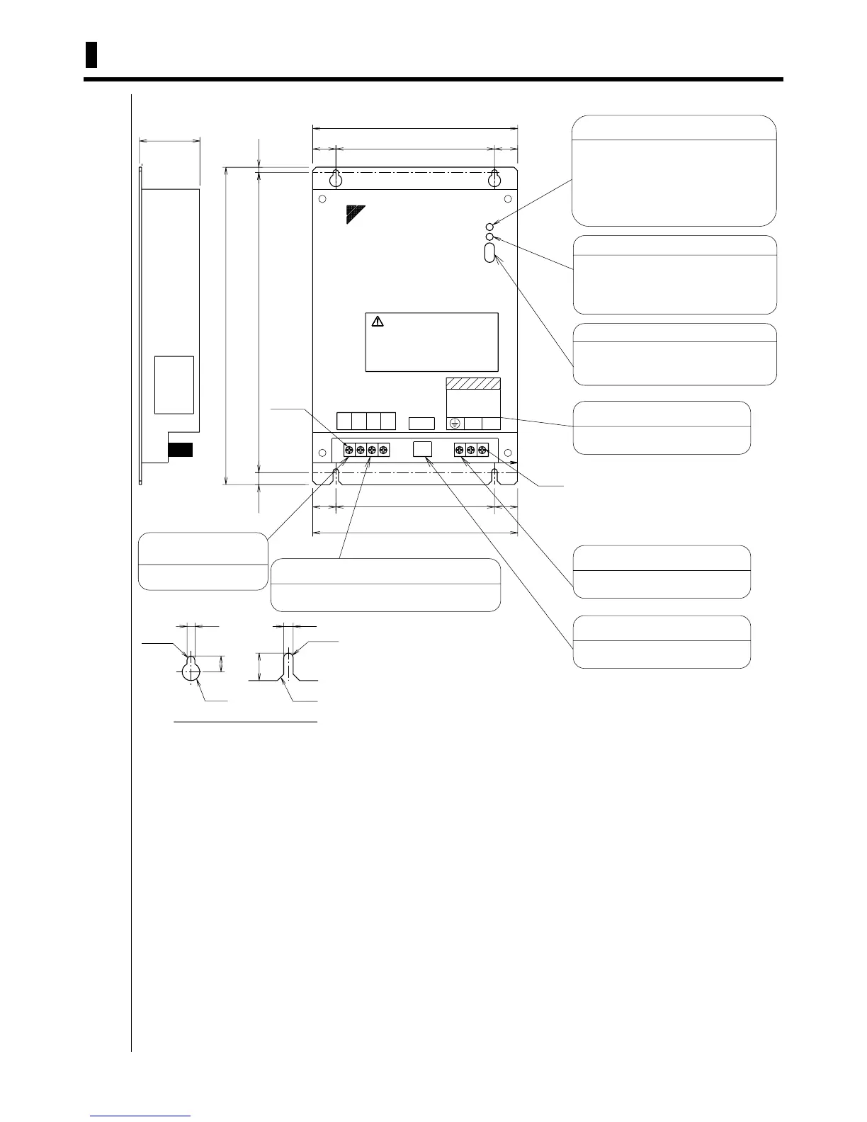
3. Part Names and Functions
1P111315
19
Terminal block for
communication with air conditioners
Terminal block for DIII-NET
communication
SERVICE SWITCH
SERVICE
ALIVE/WINK
3-M4
130
4.259.75
19
130
8-C3
19
49.6
4-M3.5
19
Terminal block for forced off input
The indoor units connected this system
are unable to be operated because they are forced off
ALIVE (GREEN) / WINK (RED)
GREEN : It flashes when the unit is
normal operation.
(at 0.4sec frequency)
RED : Receive the WINK command.
(at 0.4 sec frequency for 10sec)
Detailed drawing of fixing hole
Connect the lines with 100-240V~50/60Hz
Terminal block for power supply(N, L)
The NI(Networking Integrator) pushes
the switch when he carries out his work.
SERVICE SWITCH
The lamp turns on when the service
switch is pushed. The lamp turns off
under the normal state except
when the service switch is pushed.
SERVICE (YELLOW)
Make sure to connect the earth wire
Earth terminal block
CAUTION
Make sure the power supply is off
when carrying out the following work.
1. When taking off the Front Cover
2.
When operating the Connectors/Switches
on PCB.
100-240V
~
50/60Hz
DAIKIN
MANUFACTURER'S
LABEL
Terminal block for LONWORKS
®
Network
Terminal block for communication with
centralized control sysyem
168 ± 1
260 ± 1
246
168 ± 1
R2. 25
R2. 25
4.5 4.5
9
13
10
F1 F2 T1T2
L0
NL
POWER

Table of Contents

Related product manuals