EasyManua.ls Logo

Daikin D-BACS - DTA102 A52> Interface Adaptor for Skyair Series

Daikin D-BACS
376 pages
To Next Page IconTo Next Page
To Next Page IconTo Next Page
To Previous Page IconTo Previous Page
To Previous Page IconTo Previous Page
Loading...
334 2.2 <DTA102A52> Interface Adaptor for SkyAir Series
Adaptor
2.2 <DTA102A52> Interface Adaptor for SkyAir Series
2.2.1 Function
By connecting this kit to an optional controller for centralized control, all units of the SkyAir Series, connection unit
series in the system can be controlled as a group from the optional controller.
One kit must be installed onto the master unit of each group.
This kit is applied to the Ceiling Suspended Cassette Type FXUQ Series. To use the FXUQ Series in a system using
central control equipment, be sure to incorporate the "interface adapter for the SkyAir".
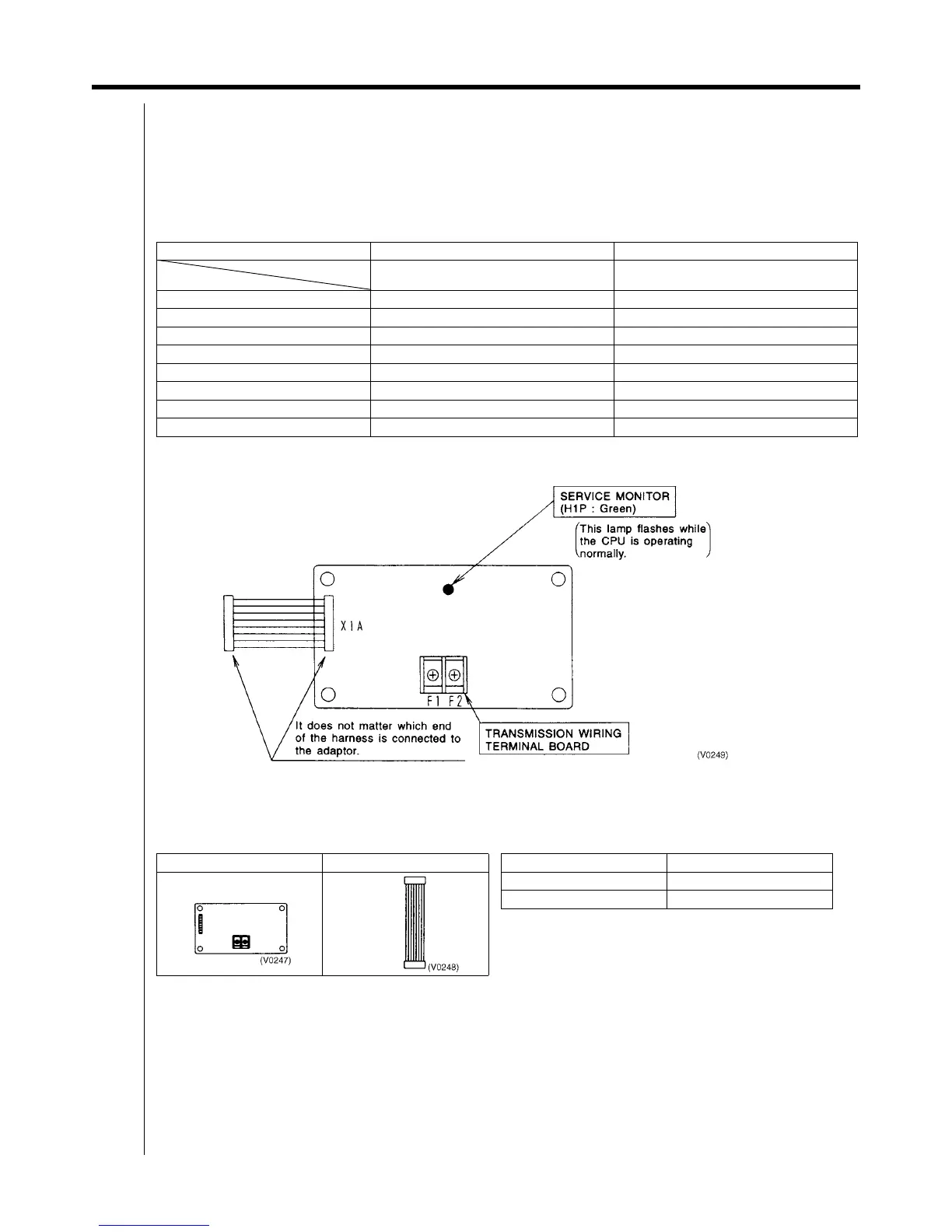
2.2.2 Part Name and Functions
2.2.3 Installation
1. Accessories
Check if the following accessories are included in the kit.
Type BRC1C62 DTA102A52
Group/Zone
Item
One Group Unified control for all Zone
ON/OFF Possible Possible
Temp. setting Possible Impossible
Air flow rate setting Possible Impossible
Air flow direction setting Possible Impossible
Timer setting twice a day Possible Impossible
Mode setting Possible Impossible
Filter sign reset Possible Impossible
Inspection/Test operation Possible Operation & Error display only by lamps
Adaptor Relay Harness PC Board Support x 4
x 1 x 1 Tie Wrap x 2
Installation Manual x 1

Table of Contents

Related product manuals