EasyManua.ls Logo

Daikin D-BACS - Page 352

Daikin D-BACS
376 pages
Print Icon
To Next Page IconTo Next Page
To Next Page IconTo Next Page
To Previous Page IconTo Previous Page
To Previous Page IconTo Previous Page
Loading...
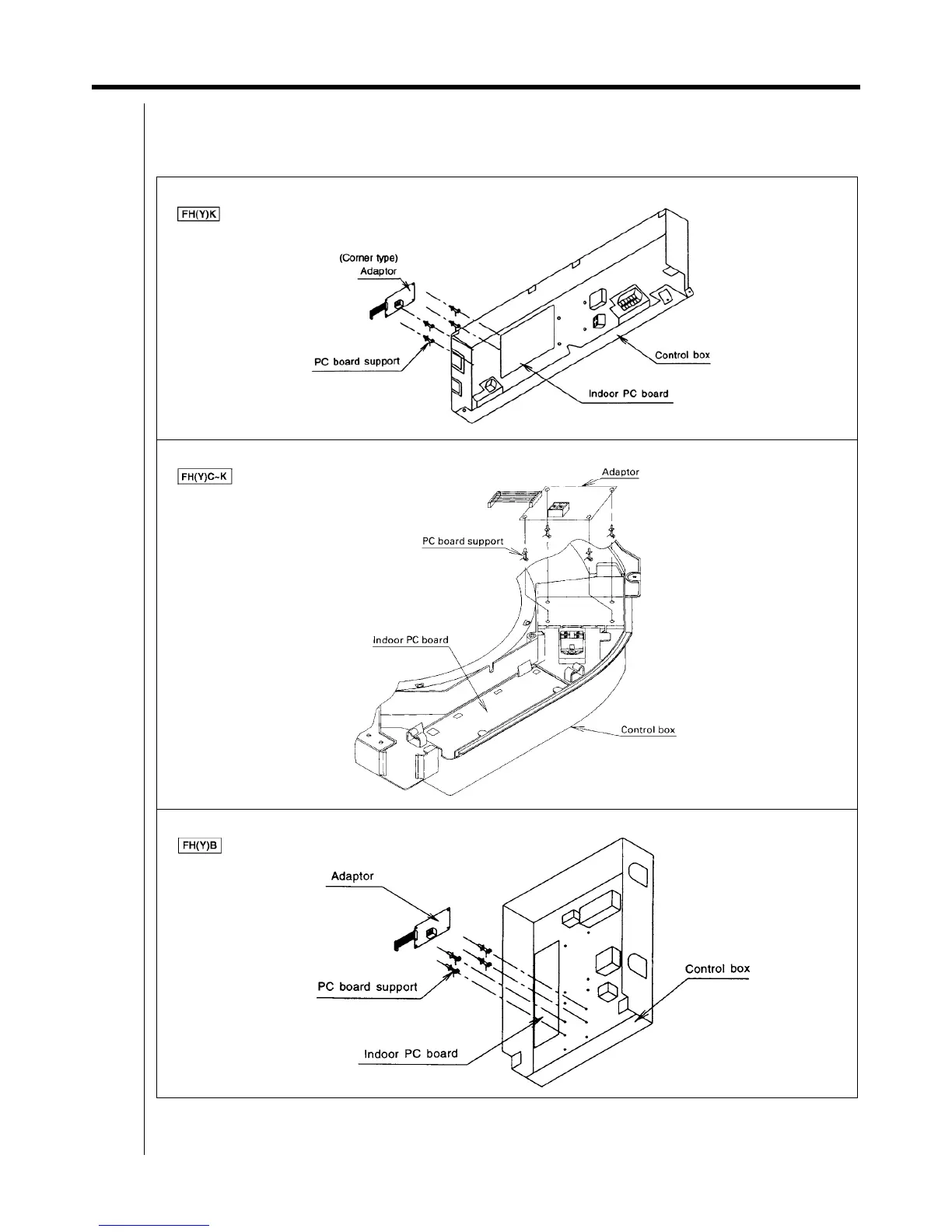
2.2 <DTA102A52> Interface Adaptor for SkyAir Series 335
Adaptor
2. Installation
Installation differs according to models as shown below.
Do not bundle low and high voltage wires together.
Bundle any excess wires with the attached tie wraps so as to keep loose wirings off the indoor unit PC board.
C : 1PA59896
Ceiling Mounted Cassette Corner Type
Ceiling Mounted Cassette Type (Multi-Flow)
Ceiling Mounted Built-In Type

Table of Contents

Related product manuals