EasyManua.ls Logo

Daikin D-BACS - Adaptor for System; DCS302 A52> Unification Adaptor for Computerized Control

Daikin D-BACS
376 pages
Print Icon
To Next Page IconTo Next Page
To Next Page IconTo Next Page
To Previous Page IconTo Previous Page
To Previous Page IconTo Previous Page
Loading...
274 1.1 <DCS302A52> Unification Adaptor for Computerized Control
Adaptor
1. Adaptor for System
1.1 <DCS302A52> Unification Adaptor for Computerized Control
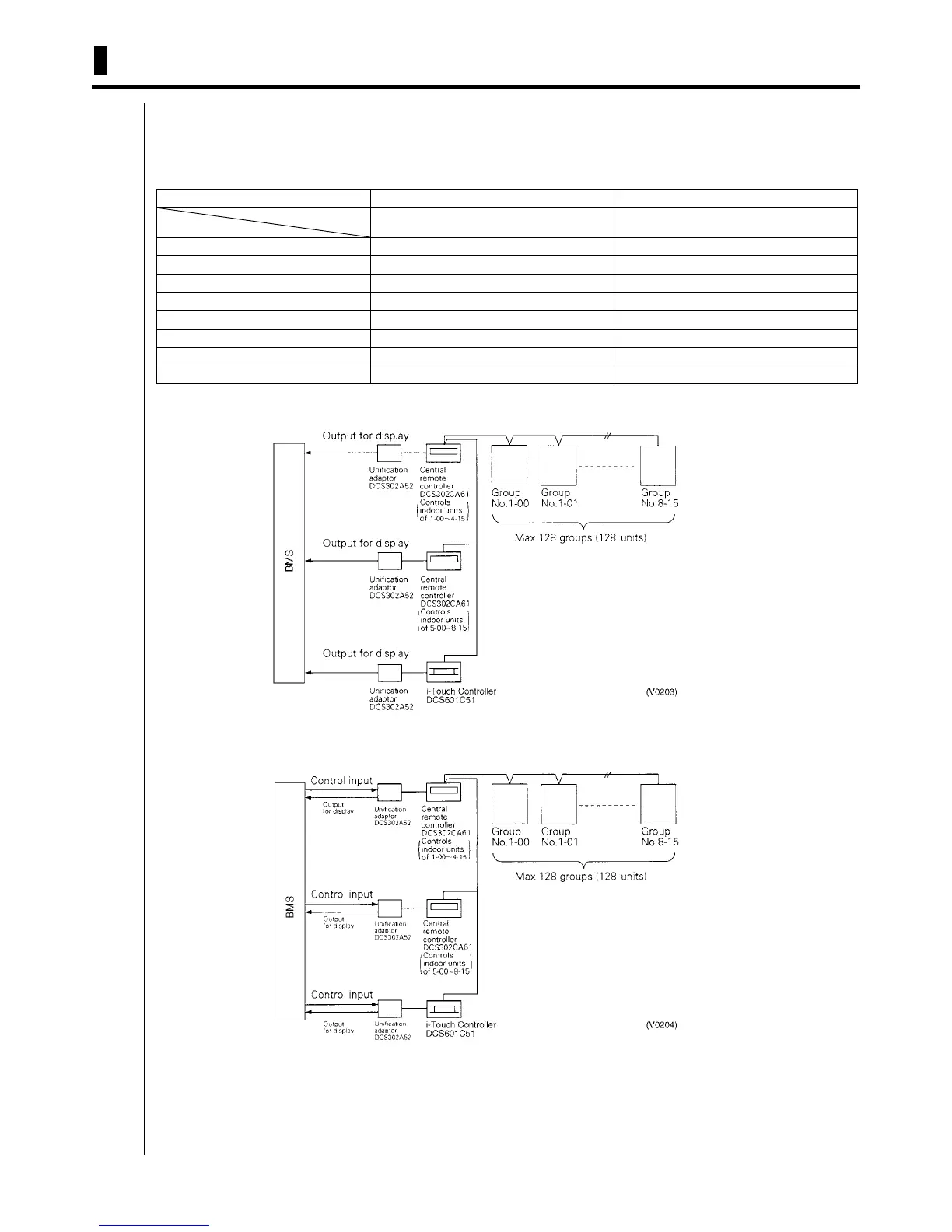
1.1.1 Function
When connected to the central remote controller, this kit enables unified display (operation/malfunction) and unified
control (operation/stop).
1. Unified Display (operation/malfunction)
2. Unified Control ( operation/stop)
Type BRC1C62 DCS302A52
Group/Zone
Item
One Group Unified control for all Zone
ON/OFF Possible Possible
Temp. setting Possible Impossible
Air flow rate setting Possible Impossible
Air flow direction setting Possible Impossible
Timer setting twice a day Possible Impossible
Mode setting Possible Impossible
Filter sign reset Possible Impossible
Inspection/Test operation Possible Operation & Error display only by lamps

Table of Contents

Related product manuals