EasyManua.ls Logo

Daikin D-BACS - 8. Combination of Multiple Central Remote Controllers

Daikin D-BACS
376 pages
Print Icon
To Next Page IconTo Next Page
To Next Page IconTo Next Page
To Previous Page IconTo Previous Page
To Previous Page IconTo Previous Page
Loading...
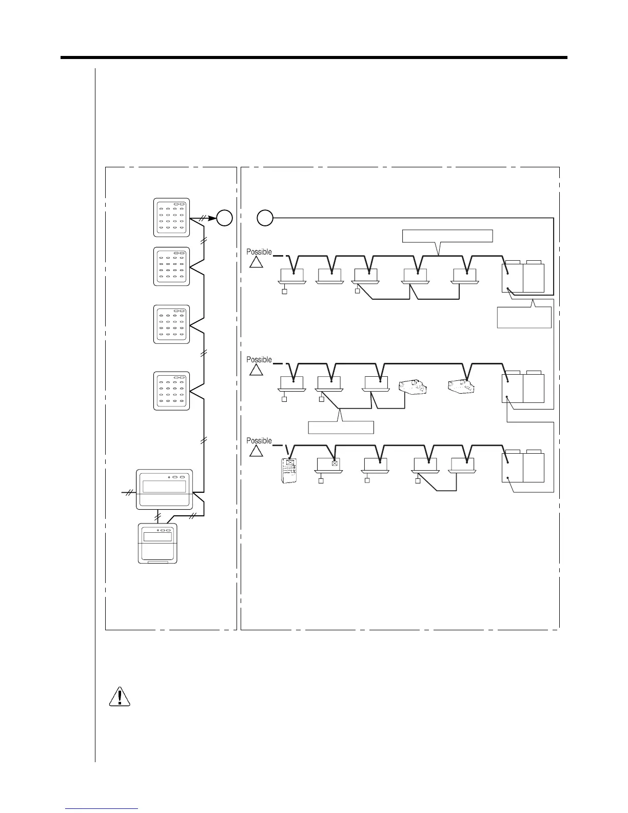
32 2.3 Connection Method
Fundamental of DIII-NET
2.3.3 Wiring Example
Example of Control Wiring
Be sure to connect the wiring of the central controller to control wiring between outdoor units.
When wiring connections are made between indoor and outdoor units, there may be cases where control over normal
systems may become impossible if one of the connected systems should happen to fail.
Be sure to prevent the connection of three wires on the same terminal.
<Pattern 1>
The advantages when the central controller are connected to A.
If the central controllers are connected to A, it is still possible to have a central control, even if the power supply of
other circuit connected to the central controller is shut-off. (even if the power is shut off due to long vacation etc.)
Caution
1. It is not recommended to connect a centralized device on (αi), as there is a risk to loose control over all systems.
Ex.; If central remote controller is connected on α 1, and System1 shut down, control over System2 and System3
units is lost.
Control wiring between indoor unit
and outdoor unit
Transmission wiring for
remote controller
Control wiring
between outdoor
units
Outdoor unit
Outdoor unit
Outdoor unit
It is possible to
operate without
remote controller.
(when the central
remote controller is
employed.)
Possible to control group operation
of up to 16 indoor units.
Group control is set by the
automatic address setting.
Combined
control of HRV
is possible
Independent
operation of HRV is
possible
Also possible to control
the operation of the air-
conditioner other than
VRV system.
(Wiring adaptor for
other air-conditioner is
required.)
Possible to control the
operation of the SkyAir
(Interface adaptor for
SkyAir series is required.)
SkyAir
Unified ON/OFF Controller
(DCS301BA61)
Up to 4 controllers can be
connected
Central remote controller
(DCS302CA61)
Forced
shut-down
input
Schedule timer (DST301BA61)
Possible to set 8 different
patterns of weekly schedule by
one unit.
Unified adapter
for computerized
control
(DCS302A52)
When all the central controller
is located at one place.
A
A
(α1)
(α2)
(α3)
System1
System2
System3

Table of Contents

Related product manuals