EasyManua.ls Logo

Eaton easy500, easy700

Eaton easy500, easy700
240 pages
To Next Page IconTo Next Page
To Next Page IconTo Next Page
To Previous Page IconTo Previous Page
To Previous Page IconTo Previous Page
Loading...
4 Wiring  with
4.15 Circuit examples
Operating instructions 05/10 MN05013003Z-EN www.eaton.com 155
4.15 Circuit examples
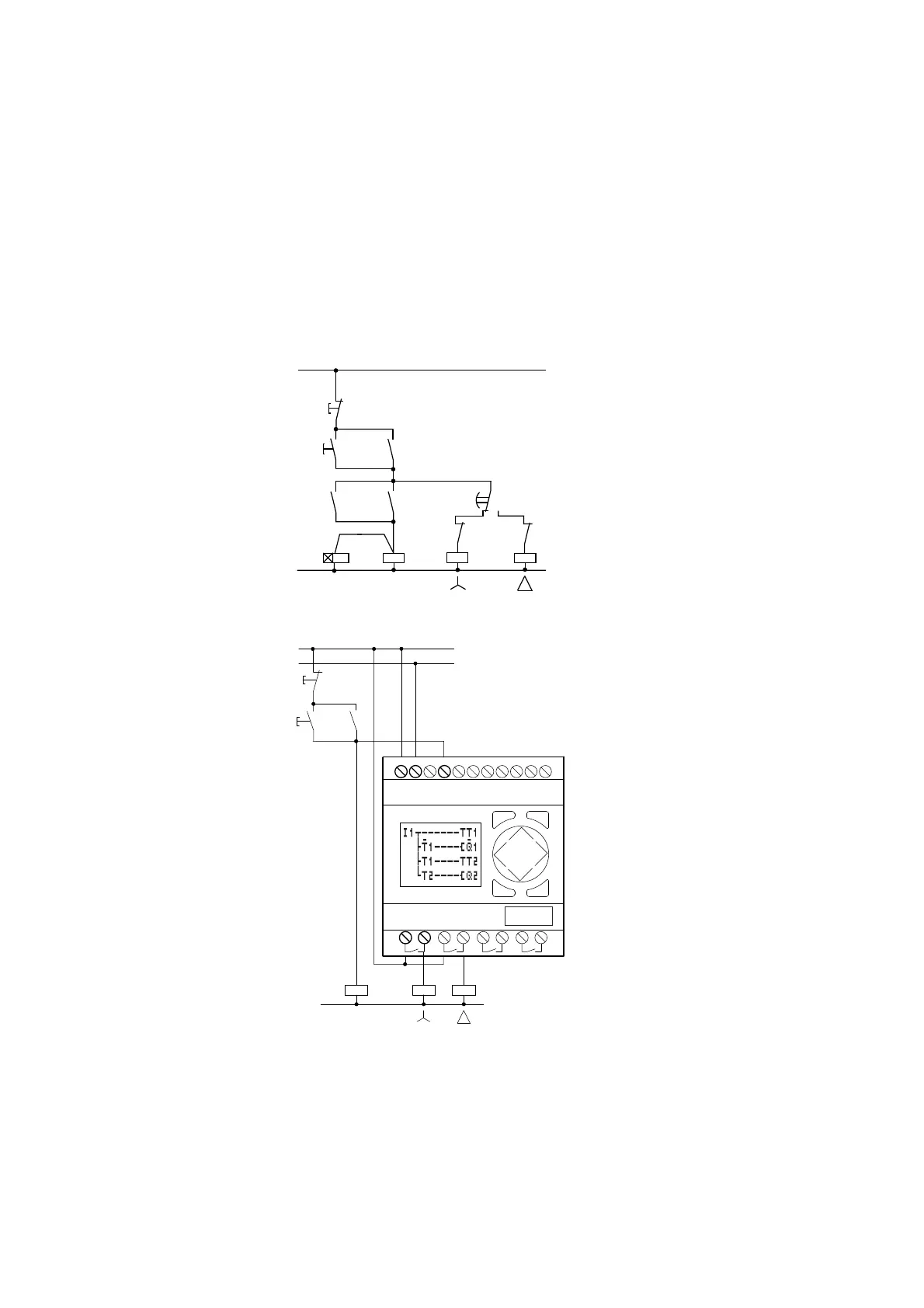
4.15.1 Star-delta starting
You can implement two star-delta circuits with easy. The advantage of easy
is that it is possible to select the changeover time between star and delta
contactors, and also the time delay between switching off the star contactor
and switching on the delta contactor.
Figure 83: Star-delta circuit with conventional contactors
Figure 84: Star-delta circuit with easy
N
Q11
Q11
Q11
K1
K1
Q12
Q12
Q13
Q13
L
S1
S2
Q12
1
1
22
Q1
I1
LN
Q2
Q12
Q12
Q11
N
Q11
L
N
S1
S2

Table of Contents

Related product manuals