EasyManua.ls Logo

FARGO electronics HDP820 - Page 162

FARGO electronics HDP820
370 pages
Print Icon
To Next Page IconTo Next Page
To Next Page IconTo Next Page
To Previous Page IconTo Previous Page
To Previous Page IconTo Previous Page
Loading...
RESTRICTED USE ONLY Fargo Electronics, Inc.
HDP 800 Series Card Printer/Encoders Service Manual (Rev. 5.0)
148
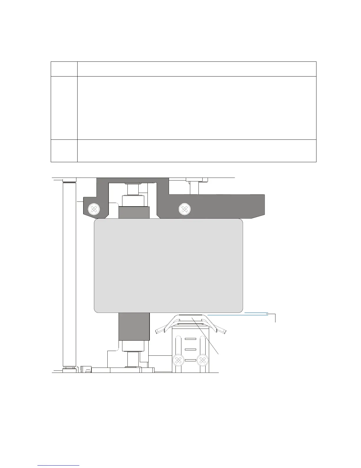
Adjusting the Card Guide Rail (continued)
Step Procedure
7 Once the adjustment is complete, be sure that the card is not binding between
the Card Guide Rail and the Internal Card Guide. (Note: Depending upon how
much you adjusted the Card Guide Rail, you may also need to adjust the Internal
Card Guide.)
When both are adjusted properly, there should be a slight space of about
.010"/.25mm between the card edge and the Internal Card Guide as indicated
here:
8 If necessary, adjust the Internal Card Guide as described in the remainder of this
section.
.010“/.25mm
space
Internal Card Guide
CR100
CR90
CR80

Table of Contents

Related product manuals