EasyManua.ls Logo

HP ProLiant DL560 Gen11 - Optical drive cabling

HP ProLiant DL560 Gen11
238 pages
To Next Page IconTo Next Page
To Next Page IconTo Next Page
To Previous Page IconTo Previous Page
To Previous Page IconTo Previous Page
Loading...
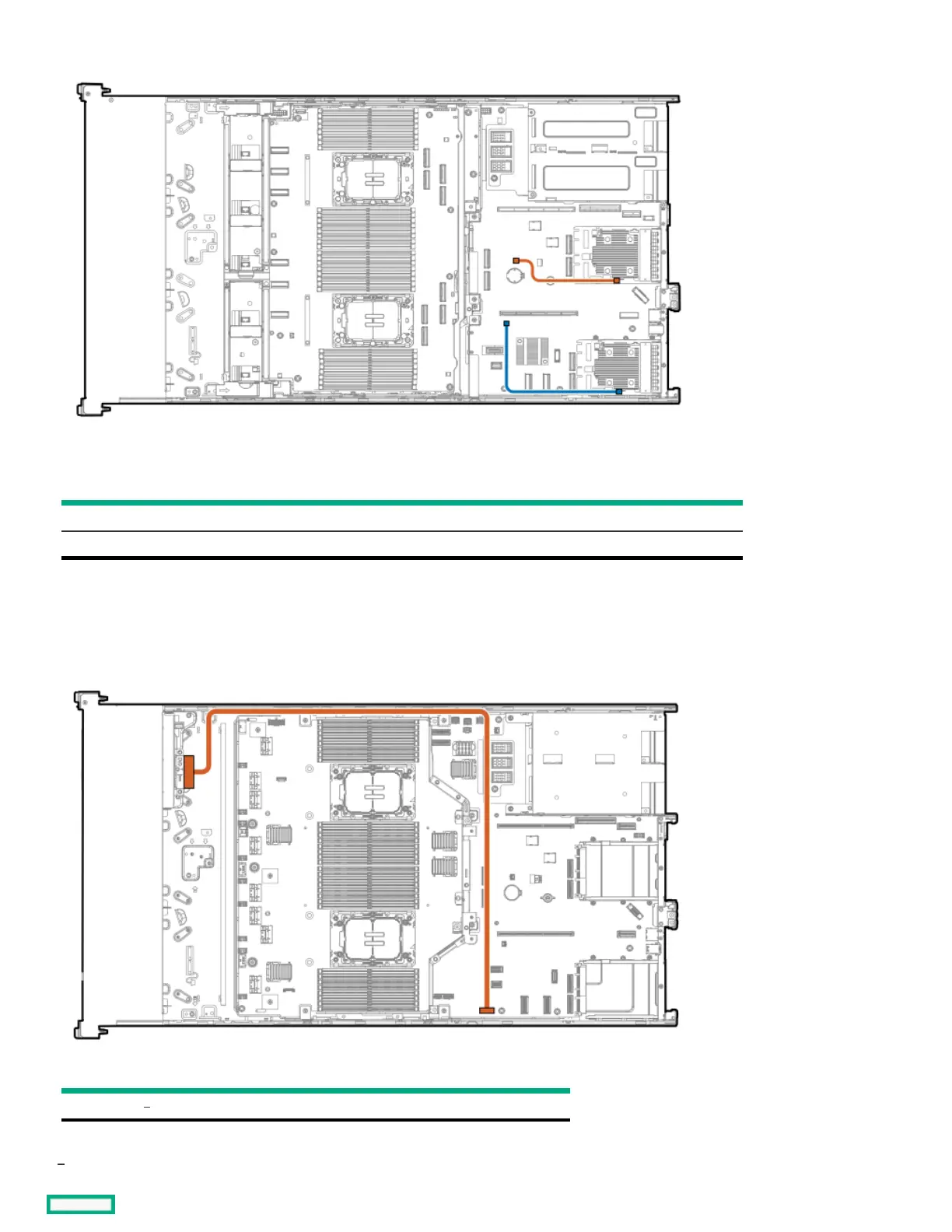
ColorColor FromFrom ToTo
Orange Type-o controller in Slot 15 OCP slot 15 backup power connector
Blue Type-o controller in Slot 14 OCP slot 14 backup power connector
Optical drive cablingOptical drive cabling
Cable part numberCable part number ColorColor FromFrom ToTo
P55376-001 Orange Universal media bay SATA optical port
Option kit: P60500-B21
1
1
HPE ProLiant DL560 Gen11 Server User Guide 212

Table of Contents

Related product manuals