EasyManua.ls Logo

ID Technology 250 - Page 119

ID Technology 250
131 pages
Print Icon
To Next Page IconTo Next Page
To Next Page IconTo Next Page
To Previous Page IconTo Previous Page
To Previous Page IconTo Previous Page
Loading...
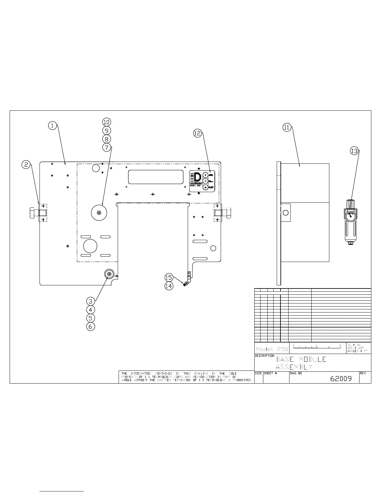
QTY ITEM QTY ITEM QTY PART NO DESCRIPTION
BASE PLATE ASSEMBLY
1 62009 ASSY. BASE PLATE
1 1 62010 PLATE,BASE
2 2 62011 BRACKET,BASE PLATE
3 1 62030-08 ROLL,IDLER
4 1 62031 SHAFT,IDLER
5 1 62034 SPACER,ROLL
6 2 62015-08 COLLAR,SPRING - 1"
7 1 62030-16 ROLL,IDLER
8 1 62031 SHAFT,IDLER
9 1 62034 SPACER,ROLL
10 1 62017 STANDOFF,COVER
11 1 62016 COVER
12 1 62012 LABEL,NAMEPLATE
13 1 62120 FILTER/REGULATOR/GUAGE
14 1 62180 TUBE,AIR ASSIST
15 1 62181 BRACKET,AIR ASSIST

Table of Contents

Related product manuals