EasyManua.ls Logo

ID Technology 250 - Page 6

ID Technology 250
131 pages
Print Icon
To Next Page IconTo Next Page
To Next Page IconTo Next Page
To Previous Page IconTo Previous Page
To Previous Page IconTo Previous Page
Loading...
Model 250
Operators/Technical Manual Printer Applicator
Page 3 of 5
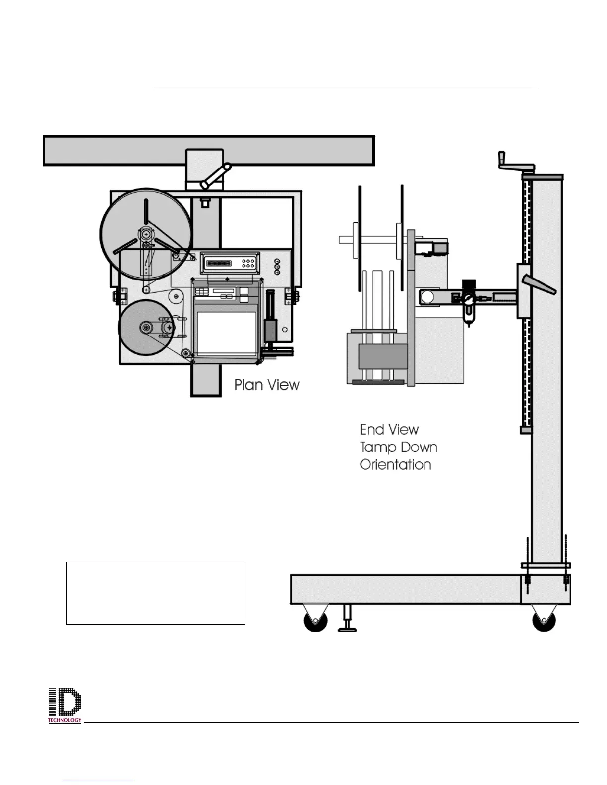
The 250 Printer Applicator
mounted on the optional
T-Base stand.

Table of Contents

Related product manuals