EasyManua.ls Logo

Rapid 2005 - SECTION 5: SPECIFICATIONS; Table 3: 2005 Weights

Rapid 2005
162 pages
Print Icon
To Next Page IconTo Next Page
To Next Page IconTo Next Page
To Previous Page IconTo Previous Page
To Previous Page IconTo Previous Page
Loading...
B-SERIES INSTALLATION, OPERATION AND SERVICE MANUAL
12 of 147
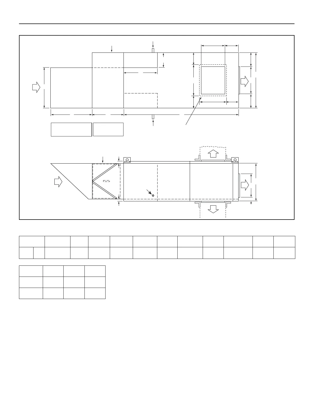
FIGURE 6: 2005 Horizontal Model Dimensions
Table 3: 2005 Weights
Table 4: Motor Weights
ED
A
N
F
TD or BD
E
D
F
G
OA
B
OA
ED
P
L
W
C
D
Q
CE
CE-OH
CE
TD
BD
M
X
GC
GC
SIDE
VIEW
PLAN
VIEW
FILTER SECTION
(OPTIONAL)
INLET HOOD
(OPTIONAL)
Customer Supplied
Duct Location
(See page 73, Table 11)
Filter Access
Filter Access
S
AA
BB
BB
Y
Z
GC-OH
Model Air Handler Stand
Inlet
Hood
Splash
Plate
Filter
Section
Roof
Curb
Discharge
Head
Dampers
Suspension
Kit
Legs
(each)
Skid
2005
(lb) 450 75 60 20 100 75 50 40 13 26 50
(kg) 204.1 34.0 27.2 9.1 45.4 34 22.7 18.1 5.9 11.8 22.7
Size
HP
kW
2
1.5
3
2.2
ODP
lb
kg
58
26.3
69
31.3
TEFC
lb
kg
90
40.8
135
61.2

Table of Contents

Related product manuals