EasyManua.ls Logo

Rapid 2005 - Figure 21: Indoor Suspension (2010 and 2010 B)

Rapid 2005
162 pages
Print Icon
To Next Page IconTo Next Page
To Next Page IconTo Next Page
To Previous Page IconTo Previous Page
To Previous Page IconTo Previous Page
Loading...
B-SERIES INSTALLATION, OPERATION AND SERVICE MANUAL
28 of 147
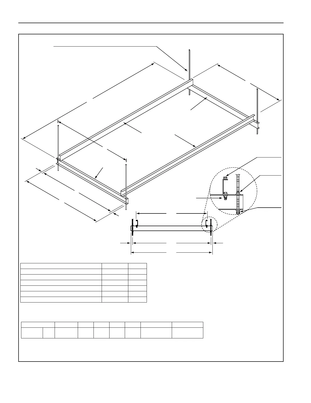
FIGURE 21: Indoor Suspension (2010 and 2010B)
A
B
E
C
D
Suspension Sides
Suspension End
Suspension End
B
D
A
Gasket Tape*
Single Nut*
Double Nuts*
E
E
E
B
1/2" x 13 Threaded Rod and Nuts
Not Supplied by manufacturer.
Nuts and bolts provided
*Provided by others
Description Part Number Qty.
2010 and 2010B Suspension Kit 77046.301
Suspension Sides 77047.103 2
Suspension Ends 77047.106 2
1/2"-13 x 1 Bolt HHCS 20524 4
Nut Flange 1/2-13 20493 4
3/4" x 1/8" Gasket Tape 92700017 15' (5 m)
Model A B C D E Weight (lbs) Weight (kg)
2010 and
2010B
(in)
(cm)
48
121.9
46
116. 8
90
228.6
42
106.7
1
2.5
140 63.5

Table of Contents

Related product manuals