EasyManua.ls Logo

Rockwell Automation Allen-Bradley Kinetix 5500 - Page 44

Rockwell Automation Allen-Bradley Kinetix 5500
260 pages
Print Icon
To Next Page IconTo Next Page
To Next Page IconTo Next Page
To Previous Page IconTo Previous Page
To Previous Page IconTo Previous Page
Loading...
44 Rockwell Automation Publication 2198-UM001M-EN-P - November 2022
Chapter 2 Plan the Kinetix 5500 Drive System Installation
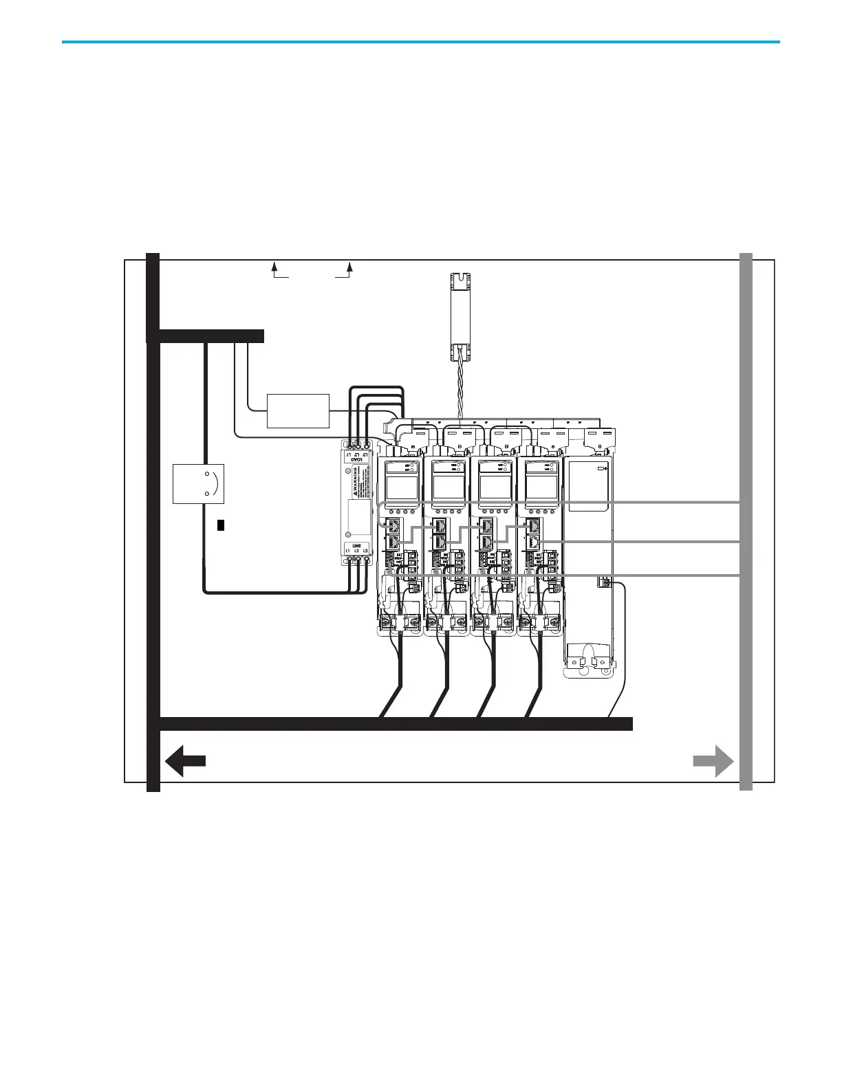
When mounting your Bulletin 2097 passive-shunt resistor inside the
enclosure, follow these additional guidelines:
Mount metal-clad modules anywhere in the dirty zone, but as close to the
Kinetix 5500 drive as possible.
Route shunt power wires with other very dirty wires.
Keep unshielded wiring as short as possible. Keep shunt wiring as flat to
the cabinet as possible.
Separate shunt power cables from other sensitive, low voltage signal
cables.
Figure 20 - External Shunt Resistor Inside the Enclosure
C
D
D
VD
D
D
C
VD
Dirty Wireway
Clean Wireway
Single Motor Cable
Very Dirty Connections Segregated
(not in wireway)
Enclosure
No sensitive
equipment within
150 mm (6.0 in.).
Shunt Power Wiring Methods:
Twisted pair in conduit (first choice).
Twisted pair, two twists per foot (min) (second choice).
Circuit
Breaker
Route single motor cables
in shielded cable.
Route registration and communication
signals in shielded cables.
Kinetix 5500 Servo Drive System
24V DC
Power Supply
AC Line Filter
(can be required for
CE and UK)
Module Status
150 mm (6.0 in.)
clearance (min) on all four
sides of the shunt resistor.
Safety Cable
(2198-Hxxx-ERS drives only)
Ethernet and I/O Cables

Table of Contents

Other manuals for Rockwell Automation Allen-Bradley Kinetix 5500

Related product manuals