EasyManua.ls Logo

wsm M8540NARROW - 2 Hydraulic Circuit; Total Hydraulic Circuit (M8540 Narrow)

wsm M8540NARROW
303 pages
Print Icon
To Next Page IconTo Next Page
To Next Page IconTo Next Page
To Previous Page IconTo Previous Page
To Previous Page IconTo Previous Page
Loading...
HYDRAULIC SYSTEM
M8540Narrow, M9540Narrow, WSM
N8-M2
2. HYDRAULIC CIRCUIT
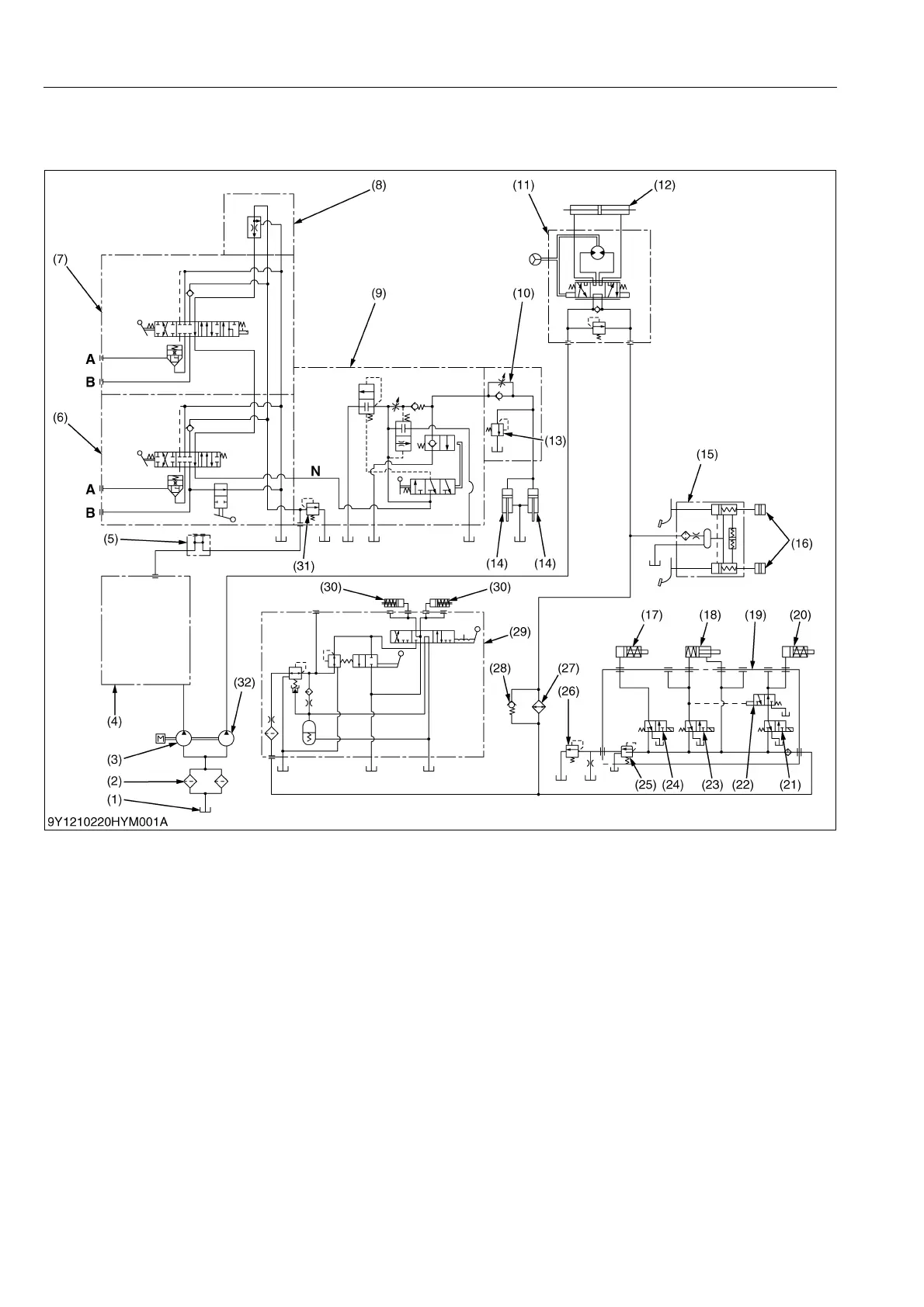
[1] TOTAL HYDRAULIC CIRCUIT (M8540NARROW)
9Y1210236HYM0002US0
(1) Oil Tank (Transmission Case)
(2) Hydraulic Oil Filter Cartridge
(3) Hydraulic Pump (for 3-point)
(4) Trailer Brake (Option)
(5) Hydraulic Outlet (Front)
(6) Auxiliary Control Valve (S/D)
(7) Auxiliary Control Valve (SCD)
(8) Flow Priority Valve
(9) Control Valve (for 3-point)
(10) Lowering Speed Adjusting
Valve
(11) Power Steering Controller
(12) Steering Cylinder
(13) Cylinder Safety Valve
(14) Exterior Hydraulic Cylinder
(15) Brake Master Cylinder
(16) Brake Piston
(17) PTO Clutch Pack
(18) 4WD Clutch Pack
(19) Solenoid Valve Assembly
(20) Bi-speed Turn Clutch Pack
(21) Solenoid Valve
(Bi-speed Turn)
(22) Priority Valve
(23) Solenoid Valve (4WD)
(24) Solenoid Valve (PTO)
(25) Relief Valve (for System)
(26) Relief Valve
(for Lubricating Line)
(27) Oil Cooler
(28) Oil Cooler Check Valve
(29) Shuttle Valve
(30) Shuttle Clutch Pack
(31) Relief Valve for 3-point
(32) Hydraulic Pump (Power
Steering, PTO Clutch, 4WD
Clutch and Shuttle Clutch)
A: To Implement Cylinder
B: To Implement Cylinder
N: N Port
KiSC issued 07, 2013 A

Table of Contents

Related product manuals