EasyManua.ls Logo

YASKAWA E-7-Series SGD7S - Page 61

YASKAWA E-7-Series SGD7S
570 pages
To Next Page IconTo Next Page
To Next Page IconTo Next Page
To Previous Page IconTo Previous Page
To Previous Page IconTo Previous Page
Loading...
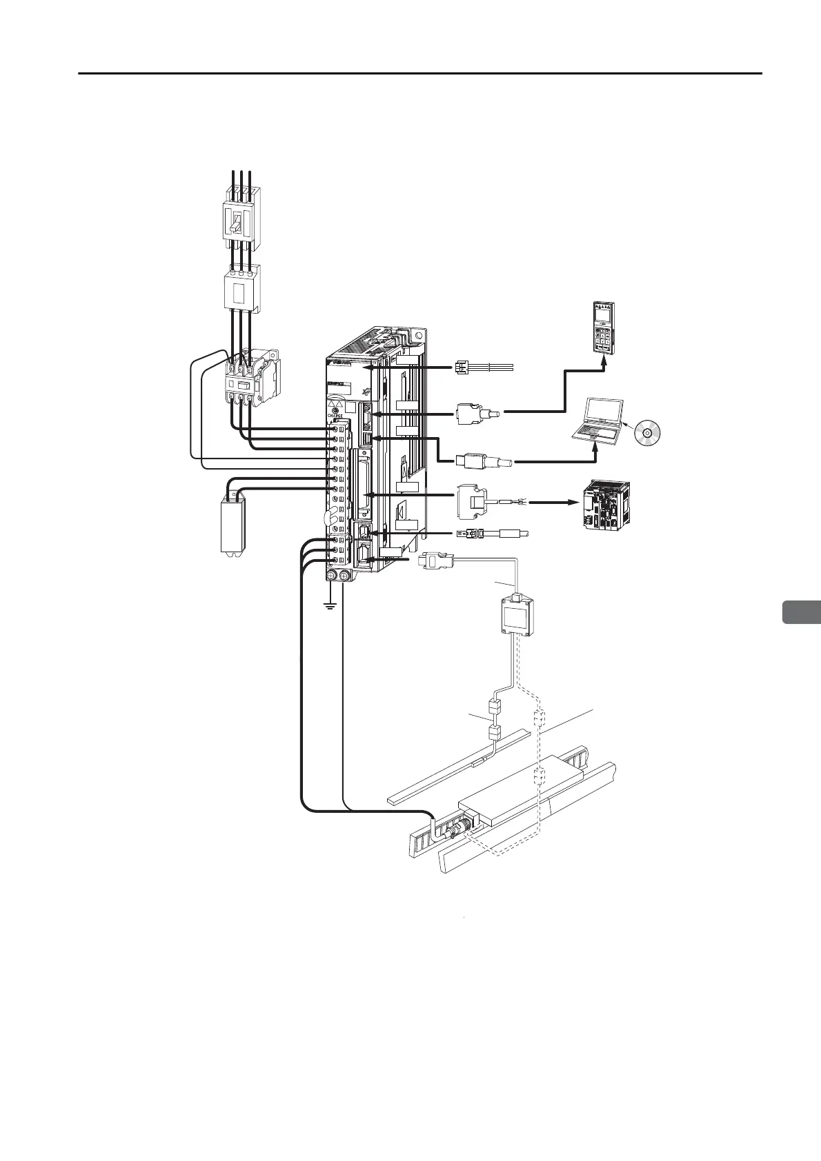
2.4 Examples of Standard Connections between SERVOPACKs and Peripheral Devices
2-15
2
Selecting a SERVOPACK
Linear Servomotor
* External Regenerative Resistors are not provided by Yaskawa.
CN8
Linear Servomotor
Ground
cable
CN3
CN5
CN7
CN1
CN2
Linear encoder
Sensor Cable
Linear Encoder Cable
Serial Converter Unit
Serial Converter Unit Cable
R S T
External
Regenerative
*
Resistor
Noise Filter
Molded-case
circuit breaker
Magnetic Contactor
I/O Signal Cable
SERVOPACK
Power supply
Three-phase, 200 VAC
Computer
Computer Cable
External
Regenerative
Resistor Cable
Control
Power
Supply Cable
Digital Operator
Digital Operator cable
Host controller
Analog Monitor Cable
Safety Function Device Cable
SERVOPACK
main circuit wires
Engineering Tool
S_Analog

Table of Contents

Related product manuals