EasyManua.ls Logo

Danfoss iC7-Automation - Page 17

Danfoss iC7-Automation
132 pages
Print Icon
To Next Page IconTo Next Page
To Next Page IconTo Next Page
To Previous Page IconTo Previous Page
To Previous Page IconTo Previous Page
Loading...
Design Guide | iC7-Automation Air-cooled Enclosed Drives Product Overview
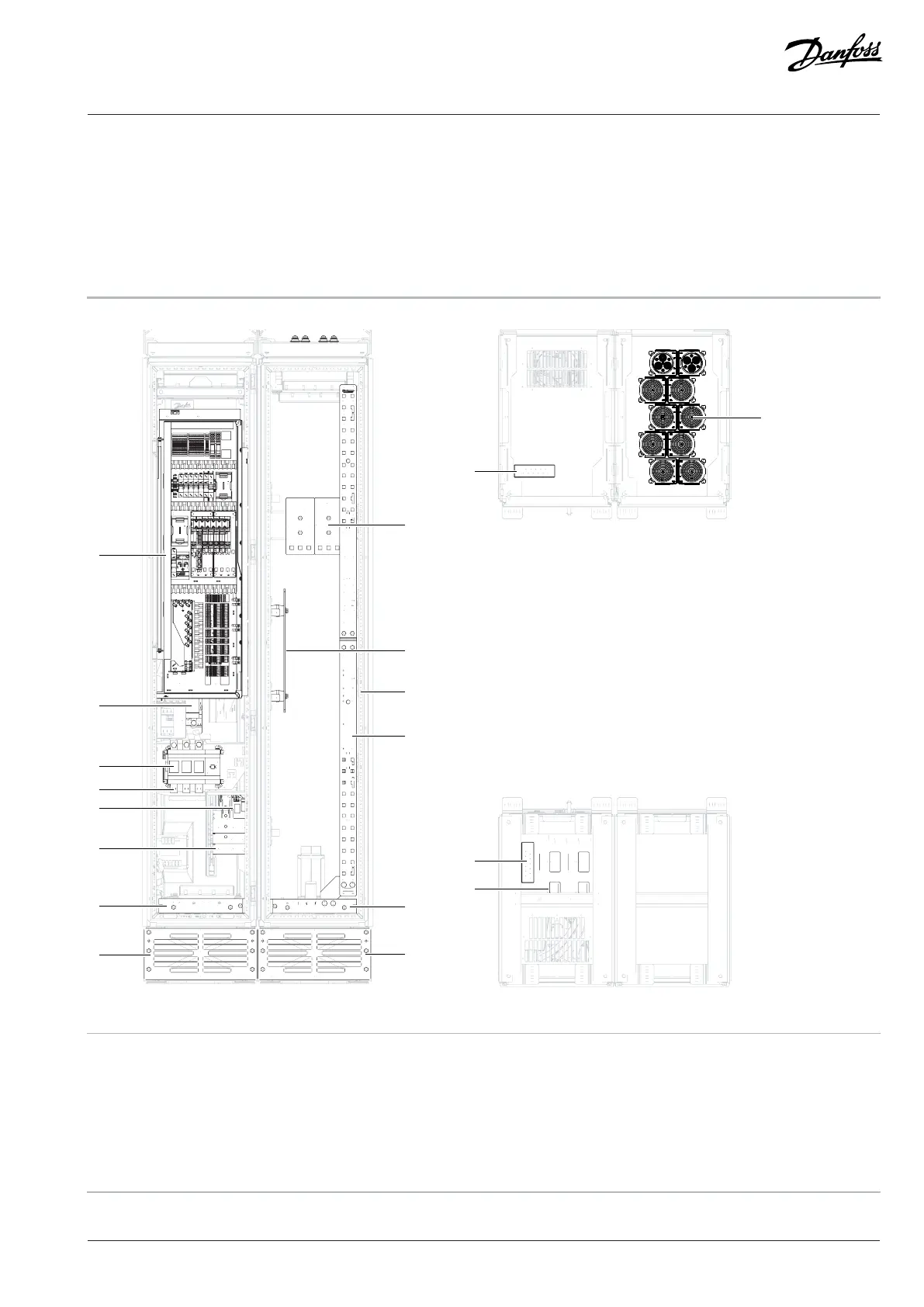
5 dU/dt Filter 6 Motor terminals
7 PE busbar 8 Inlet air grill
9 IP54 grommet for mains and motor cables (IEC) 10 Control cable grommet, bottom
11 Control cable grommet, top A View from the top
B View from the bottom
9
10
B
A
e30bj469.11
14
1
2
3
4
5
6
7
7
12
7
8
8
13
11
15
Figure 2: Interior View of FE9 with Top-entry Option
1 Control compartment 2 Contactor
3 Main switch (optional) 4 Mains terminals
5 dU/dt Filter 6 Motor terminals
7 PE busbar 8 Inlet air grill
9 IP54 grommet for mains and motor cables (IEC) 10 Control cable grommet, bottom
Danfoss Drives Oy © 2024.09 AJ389643274589en-000101 / 172F6409A | 17

Table of Contents

Related product manuals