EasyManua.ls Logo

Danfoss iC7-Automation - Dimensions for Back-Channel Cooling Option, FE9

Danfoss iC7-Automation
132 pages
Print Icon
To Next Page IconTo Next Page
To Next Page IconTo Next Page
To Previous Page IconTo Previous Page
To Previous Page IconTo Previous Page
Loading...
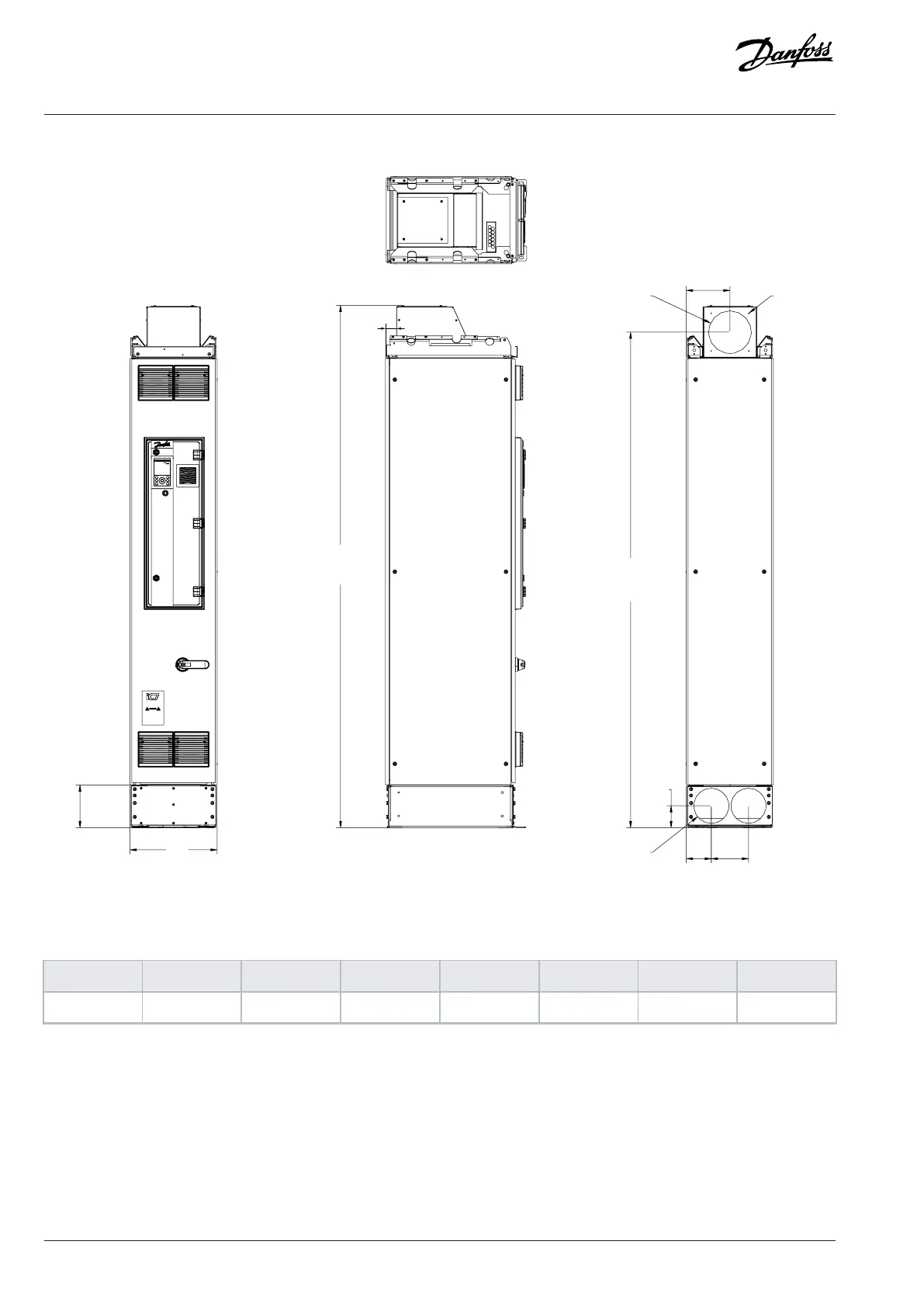
9.2.7 Dimensions for Back-channel Cooling Option, FE9
Ø 200
(7.87)
2322
(91.41)
2450
(96.45)
W1
Ø 4.5
(0.17)
e30bj529.10
200
(7.87)
W
W4
Ø165
(64.96)
103
(4.05)
W5
53
(2.08)
Figure 58: Dimensions for Back-channel Cooling (+OABC), FE9, in mm (in)
Table 33: Dimensions in mm (in)
W W1 W2 W3 W4 W5 W6 W7
408 (16.1) 204 (8.0) 117 (4.6) 174 (6.9)
84 | Danfoss Drives Oy © 2024.09 AJ389643274589en-000101 / 172F6409A
Design Guide | iC7-Automation Air-cooled Enclosed Drives Specifications

Table of Contents

Related product manuals