EasyManua.ls Logo

Danfoss iC7-Automation - Dimensions for Default Cooling, FE10

Danfoss iC7-Automation
132 pages
Print Icon
To Next Page IconTo Next Page
To Next Page IconTo Next Page
To Previous Page IconTo Previous Page
To Previous Page IconTo Previous Page
Loading...
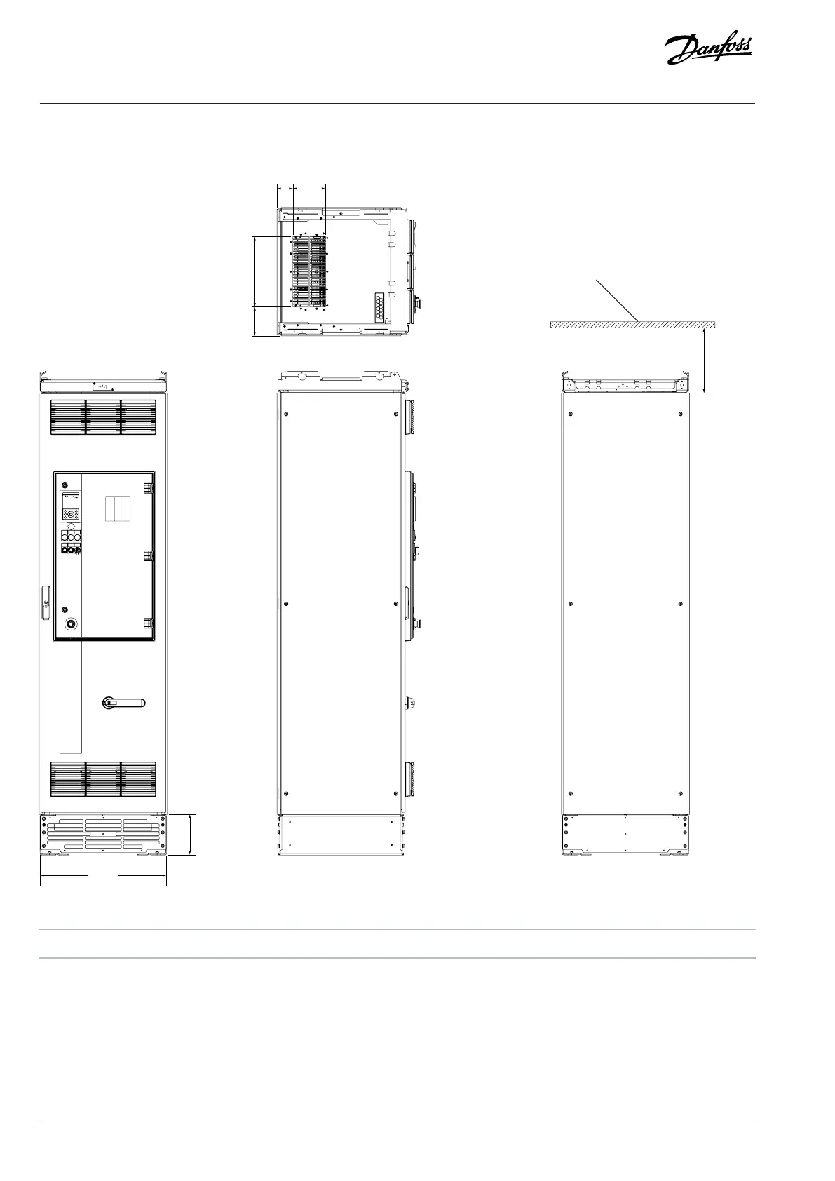
9.2.5 Dimensions for Default Cooling, FE10
225
(8.86)
133.5
(5.26)
333
(13.11)
75.2
(2.96)
155
(6.10)
600
(23.62)
200
(7.87)
e30bj531.12
1
Figure 56: Dimensions for Default Cooling, FE10, in mm (in)
1 Roof
82 | Danfoss Drives Oy © 2024.09 AJ389643274589en-000101 / 172F6409A
Design Guide | iC7-Automation Air-cooled Enclosed Drives Specifications

Table of Contents