EasyManua.ls Logo

Danfoss iC7-Automation - Dimensions of the 16-Port Star Coupler Board

Danfoss iC7-Automation
132 pages
Print Icon
To Next Page IconTo Next Page
To Next Page IconTo Next Page
To Previous Page IconTo Previous Page
To Previous Page IconTo Previous Page
Loading...
Design Guide | iC7-Automation Air-cooled Enclosed Drives Specifications
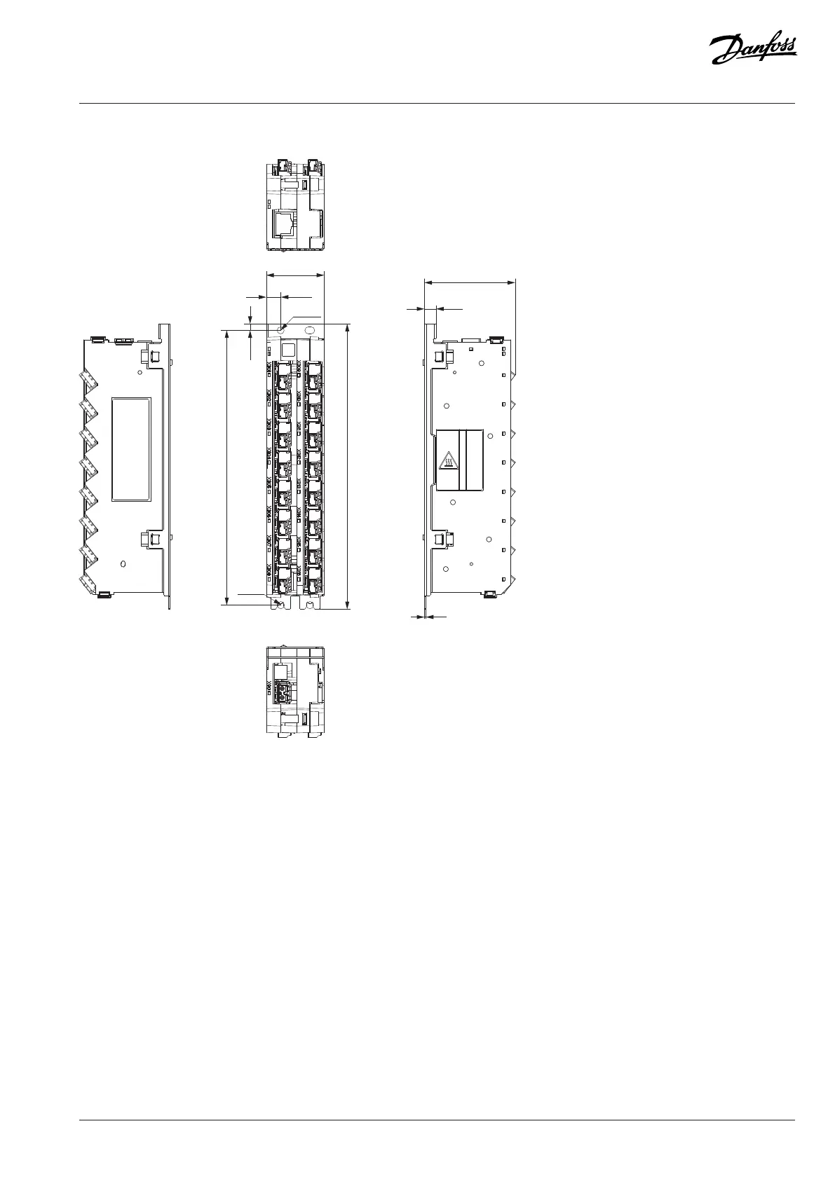
9.2.18 Dimensions of the 16-port Star Coupler Board
1 (0.04)
39.8 (1.57)
62.4 (2.46)
8 (0.32)
9.8 (0.39)
4.5
(0.18)
Ø4.8 (0.19)
Ø4
(0.16)
189 (7.44)
196 (7.72)
e30bj030.11
Figure 69: Dimensions of the 16-port Star Coupler Board in mm (in)
Danfoss Drives Oy © 2024.09 AJ389643274589en-000101 / 172F6409A | 95

Table of Contents

Related product manuals