EasyManua.ls Logo

Danfoss iC7-Automation - Dimensions for Default Cooling, AE10, AE11, IE10, IE11

Danfoss iC7-Automation
132 pages
Print Icon
To Next Page IconTo Next Page
To Next Page IconTo Next Page
To Previous Page IconTo Previous Page
To Previous Page IconTo Previous Page
Loading...
Design Guide | iC7-Automation Air-cooled Enclosed Drives Specifications
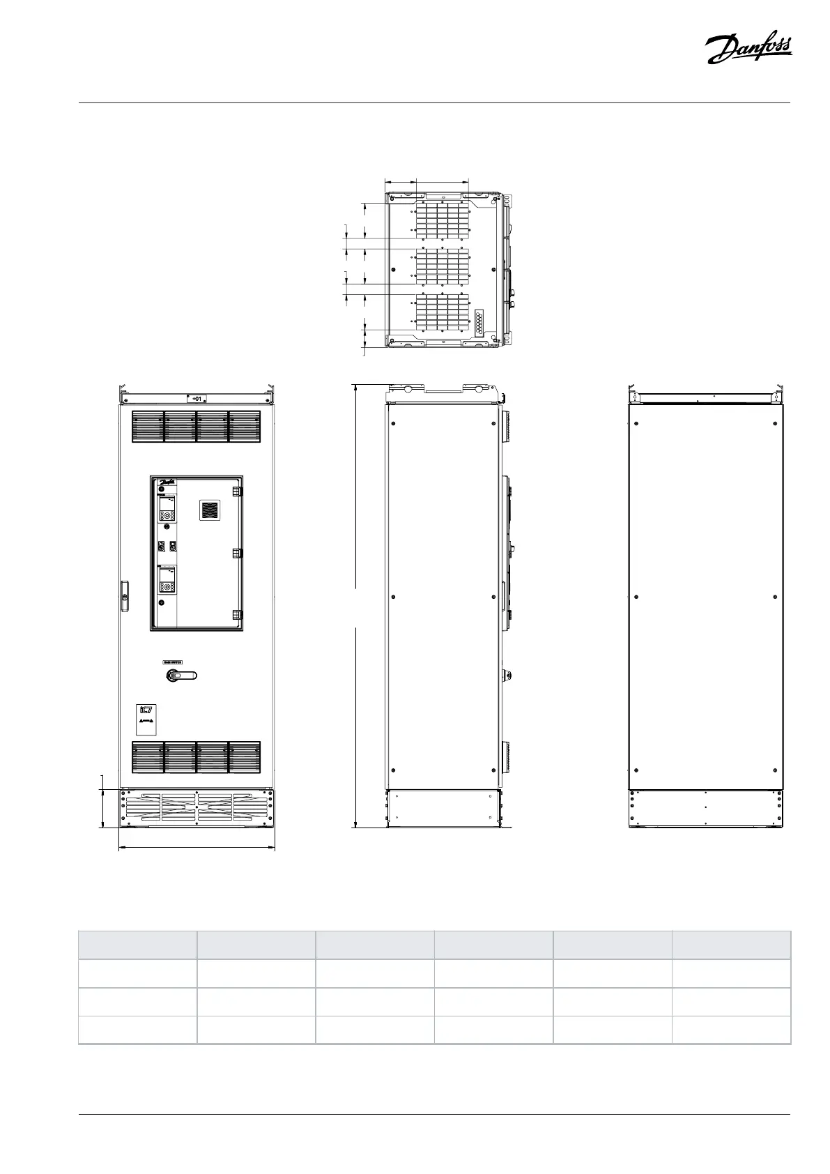
9.2.6 Dimensions for Default Cooling, AE10, AE11, IE10, IE11
163
(6.41)
433
(17.04)
W5
W4
W2
W1
W3
W3
200
(7.87)
2305
(90.74)
W
e30bl876.10
Figure 57: Dimensions for Default Cooling, AE10, AE11, IE10, IE11, in mm (in)
Table 32: Dimensions in mm (in)
W W1 W2 W3 W4 W5
408 (16.1) 166 (6.5) 183 (7.2)
608 (23.9) 129 (5.1) 183 (7.2) 54 (2.1) 183 (7.2)
808 (31.8) 92 (3.6) 183 (7.2) 54 (2.1) 183 (7.2) 183 (7.2)
Danfoss Drives Oy © 2024.09 AJ389643274589en-000101 / 172F6409A | 83

Table of Contents

Related product manuals