EasyManua.ls Logo

Danfoss iC7-Automation - Dimensions of the Enclosed Drive, AE10, AE11, IE10, IE11

Danfoss iC7-Automation
132 pages
Print Icon
To Next Page IconTo Next Page
To Next Page IconTo Next Page
To Previous Page IconTo Previous Page
To Previous Page IconTo Previous Page
Loading...
Design Guide | iC7-Automation Air-cooled Enclosed Drives Specifications
9.2.3 Dimensions of the Enclosed Drive, AE10, AE11, IE10, IE11
368
(14.49)
568
(22.36)
120
(4.72)
608
(23.94)
657
(25.87)
D
2280
(89.76)
2405
(94.69)
Ø13
(Ø0.51)
W2 - 65
(W2 - 2.56)
W1 - 65
(W1 - 2.56)
65
(2.56)
W1 W2
W W3 W4
W5
200
(7.87)
211
(8.31)
2202
(86.93)
2238
(88.11)
2303
(90.67)
W1 - 90
(W1 - 3.54)
W2 - 90
(W2 - 3.54)
90
(3.54)
Ø13 x 23
(Ø0.51 x 0.91)
589
(23.19)
657
(25.87)
W1 - 225
(W1 - 8.86)
W2 - 225
(W2 - 8.86)
225
(8.86)
DD
e30bj579.13
B
A
C
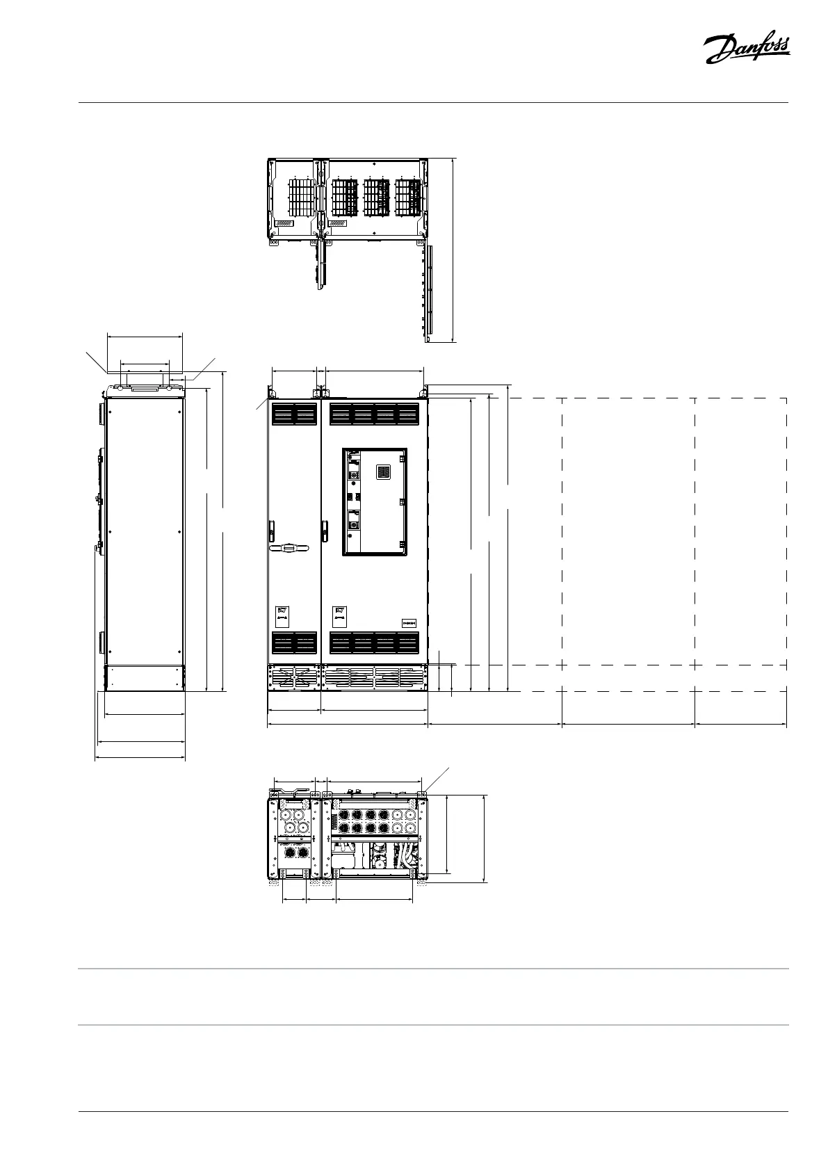
Figure 54: Dimensions of the Enclosed Drive, AE10, AE11, IE10, and IE11, in mm (in)
A View from the top B View from the bottom
C IP54 hood
Danfoss Drives Oy © 2024.09 AJ389643274589en-000101 / 172F6409A | 79

Table of Contents

Related product manuals