EasyManua.ls Logo

HPE ProLiant DL385 Gen11 - HPE NS204 i Boot Device cabling; HPE NS204 i Boot Device cabling on the secondary riser cage; HPE NS204 i Boot Device cabling on top of the power supplies

HPE ProLiant DL385 Gen11
373 pages
To Next Page IconTo Next Page
To Next Page IconTo Next Page
To Previous Page IconTo Previous Page
To Previous Page IconTo Previous Page
Loading...
Cable part numberCable part number ColorColor FromFrom ToTo
P44218-001 Orange NVMe port 7B or 6B Slot 9
Blue NVMe/SATA port 9B or 8B Slot 11
Pink NVMe/SATA port 1A or 9A Slot 14
P55816-001 Yellow NVMe port 7A or 6A Slot 16
HPE NS204i Boot DeviceHPE NS204i Boot Device cabling cabling
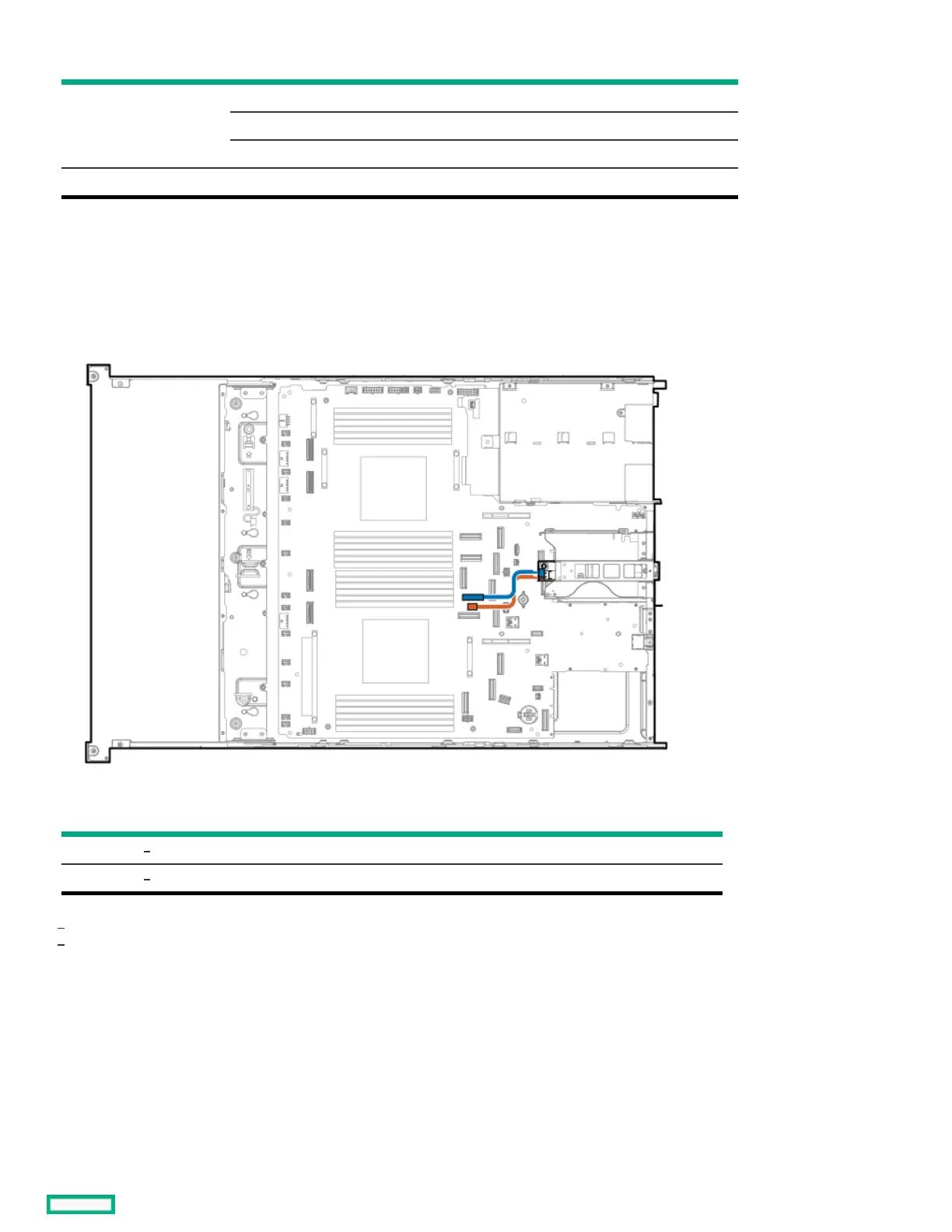
HPE NS204i Boot DeviceHPE NS204i Boot Device cabling on the secondary riser cage cabling on the secondary riser cage
Cable part numberCable part number ColorColor FromFrom ToTo
P54088-001 Orange NS204i-u power connector HPE NS204i Boot Device
P54087-001 Blue NS204i-u signal connector HPE NS204i Boot Device
Option kit: P57885-B21
Option kit: P57850-B21; P57885-B21
HPE NS204i Boot DeviceHPE NS204i Boot Device cabling on top of the power supplies cabling on top of the power supplies
1
2
1
2
HPE ProLiant DL385 Gen11 Server Maintenance and Service Guide 351

Table of Contents

Related product manuals