EasyManua.ls Logo

HPE ProLiant DL385 Gen11 - Troubleshooting

HPE ProLiant DL385 Gen11
373 pages
To Next Page IconTo Next Page
To Next Page IconTo Next Page
To Previous Page IconTo Previous Page
To Previous Page IconTo Previous Page
Loading...
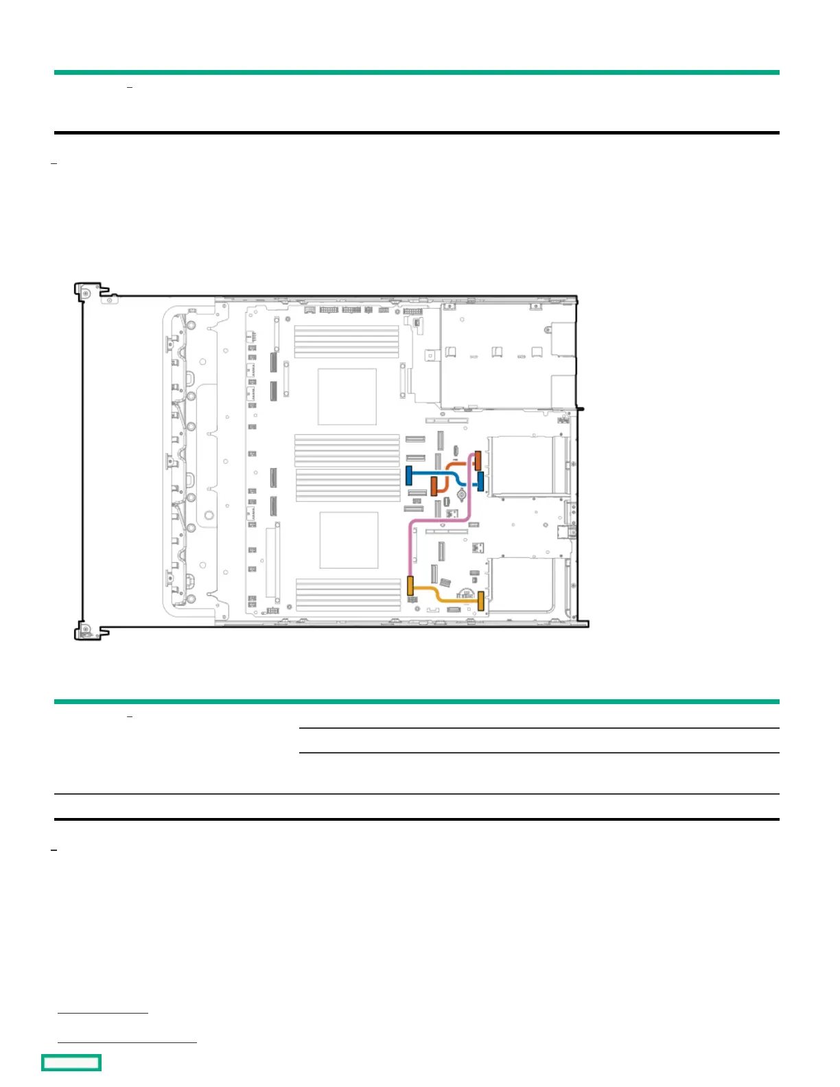
Cable part numberCable part number ColorColor FromFrom ToTo
P58077-001 Orange ODD/2SFF power connector or
NVMe/SATA port 8B or
NVMe/SATA port 1A
Optical drive
Option kit: P57889-B21
OCP bandwidth upgrade cablingOCP bandwidth upgrade cabling
Cable part numberCable part number ColorColor FromFrom ToTo
P58174-001 Orange NVMe port 5B OCP slot 22 port 1
Blue NVMe port 4B OCP slot 22 port 2
Yellow NVMe port 4A OCP slot 21 x16 upgrade
connector
P58173-001 Pink NVMe port 4A OCP slot 22 port 1
Option kit: P57882-B21; P57849-B21
TroubleshootingTroubleshooting
SubtopicsSubtopics
NMI functionalityNMI functionality
Troubleshooting resourcesTroubleshooting resources
1
1
1
1
HPE ProLiant DL385 Gen11 Server Maintenance and Service Guide 359

Table of Contents

Related product manuals