EasyManua.ls Logo

Kyocera KM-4035

Kyocera KM-4035
351 pages
To Next Page IconTo Next Page
To Next Page IconTo Next Page
To Previous Page IconTo Previous Page
To Previous Page IconTo Previous Page
Loading...
2FD/2FF/2FG
1-6-17
5. Unhook the round terminal of the scanner
wire from the scanner tension spring on the
left side of the scanner unit.
6. Remove the scanner wire.
Figure 1-6-32
(2-2) Refitting the scanner wires
Caution:
When fitting the wires, be sure to use those specified below.
Machine front: P/N 2AV1219 (black)
Machine rear: P/N 2AV1220 (gray)
Fitting requires the following tools:
Two frame securing tools (P/N 2AV6808)
Two scanner wire stoppers (P/N 3596811)
Procedure
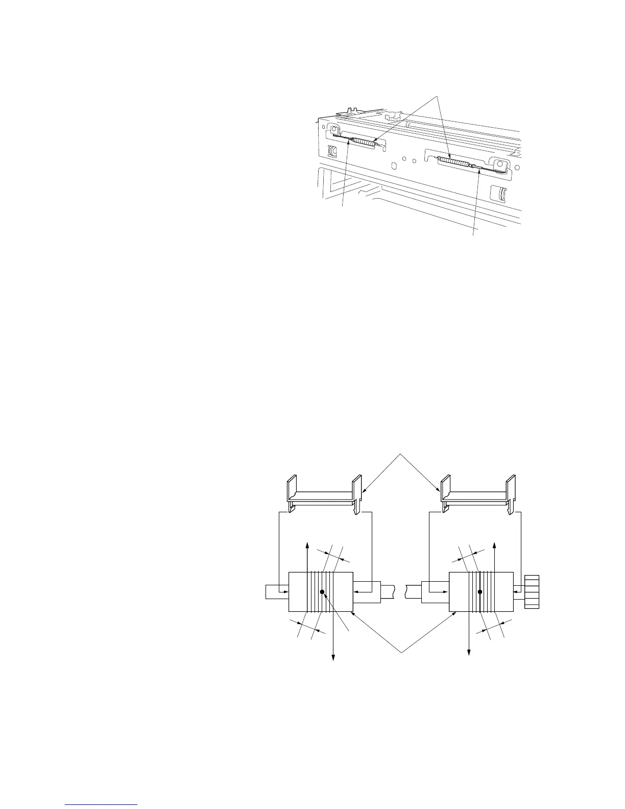
1. Insert the locating ball on each of the scanner
wires into the hole in the respective scanner
wire drum and wind the scanner wire three
turns inward and four turns outward.
With the locating ball as the reference point,
wind the shorter end of each of the wires
inward.
2. Secure the scanner wires using the scanner
wire stoppers.
Figure 1-6-33
Scanner wire
Scanner tension spring
Scanner wire
Three turns inward Three turns inward
Four turns outward Four turns outward
Locating ball
Scanner wire drum
Scanner wire stoppers

Table of Contents

Other manuals for Kyocera KM-4035

Related product manuals