EasyManua.ls Logo

Nortel SONET AccessNode 800A Series - Page 326

Nortel SONET AccessNode 800A Series
450 pages
Print Icon
To Next Page IconTo Next Page
To Next Page IconTo Next Page
To Previous Page IconTo Previous Page
To Previous Page IconTo Previous Page
Loading...
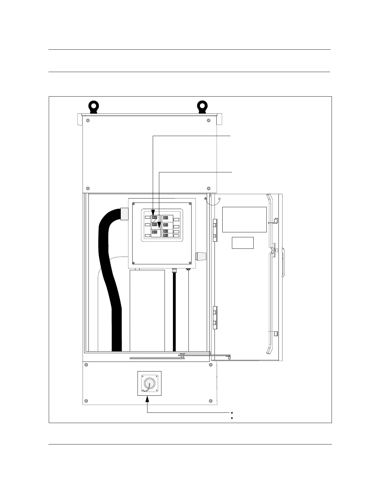
12-34 Cabinet maintenance operations
AccessNode 323-3001-210 Issue 1.0
Procedure 12-7 (continued)
Connecting emergency standby power - ac load box option with mechanical interlock
Figure 12-6
View of the ac compartment with a mechanical interlock
FW-15065
—end—
Main Circuit Breaker
Emergency Generator
Circuit Breaker
Emergency Generator Connector
NT7A56AA Hubbell Twist Lock or
NT7A56BA Crouse-Hinds
FW-15065

Table of Contents

Related product manuals