EasyManua.ls Logo

Siemens SIDOOR ATD4 W Series - Profibus; PROFIBUS Module

Siemens SIDOOR ATD4 W Series
352 pages
To Next Page IconTo Next Page
To Next Page IconTo Next Page
To Previous Page IconTo Previous Page
To Previous Page IconTo Previous Page
Loading...
7. Slide the protective cover in the insertion direction back into its correct position.
8. Screw the 󹪝xing screw holding the protective cover on the relay module back in.
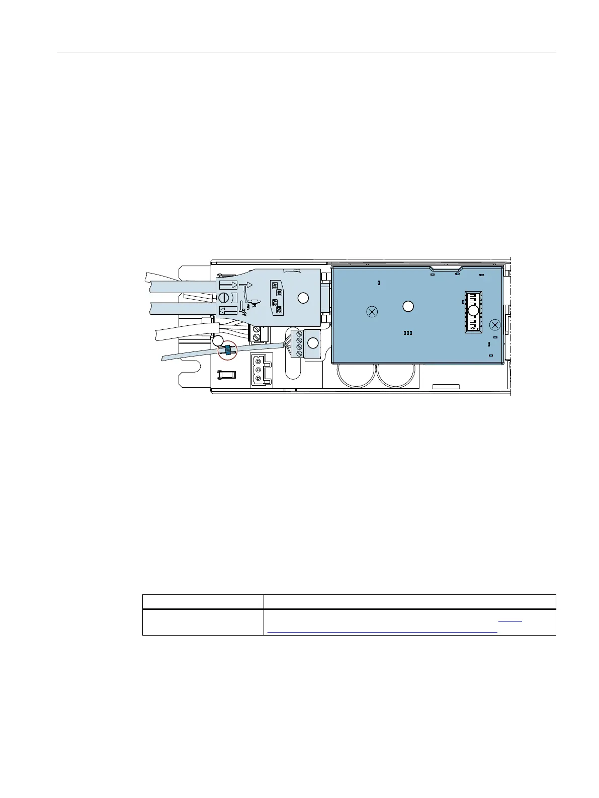
5.5.2 PROFIBUS
5.5.2.1 PROFIBUS module
Overview
H405
H700
H701
H404
H403
H1
H2
H3
H400 H401 H402
Cable ties
X705
X100
Protective cover
DIP switches
All standard PROFIBUS baud rates from 9.6 to 12,000 Kbps are supported. The baud rate is
detected automatically.
GSD 󹪝le
All other slave functionality is described in the corresponding GSD 󹪝le.
Table 5-6 GSD 󹪝le
GSD 󹪝le Download
SIEM81BA.GSD The GSD 󹪝le is available online at Industry online support (http://
support.automation.siemens.com/WW/view/en/99008084).
You can 󹪝nd explanations of the basic functions and communication properties of the DP slave
in the section PROFIBUS communication (Page 145).
Controllers
5.5 Relay and 󹪝eldbus interfaces
ATD4xxW for industrial applications
System Manual, 06/2022, A5E51901827B AA 139

Table of Contents

Related product manuals