EasyManua.ls Logo

WinGD RT-flex50DF - Page 470

Default Icon
586 pages
Print Icon
To Next Page IconTo Next Page
To Next Page IconTo Next Page
To Previous Page IconTo Previous Page
To Previous Page IconTo Previous Page
Loading...
Maintenance67081/A1
Winterthur Gas & Diesel Ltd.
10/ 10
4. Completion
1) Install the supports and bottom plates
that you removed before.
2) Remove the pin (1, Fig 18) to unlock
the inspection cover (2).
3) Close the inspection cover (2).
4) Install the pin (1) in the stowage
position.
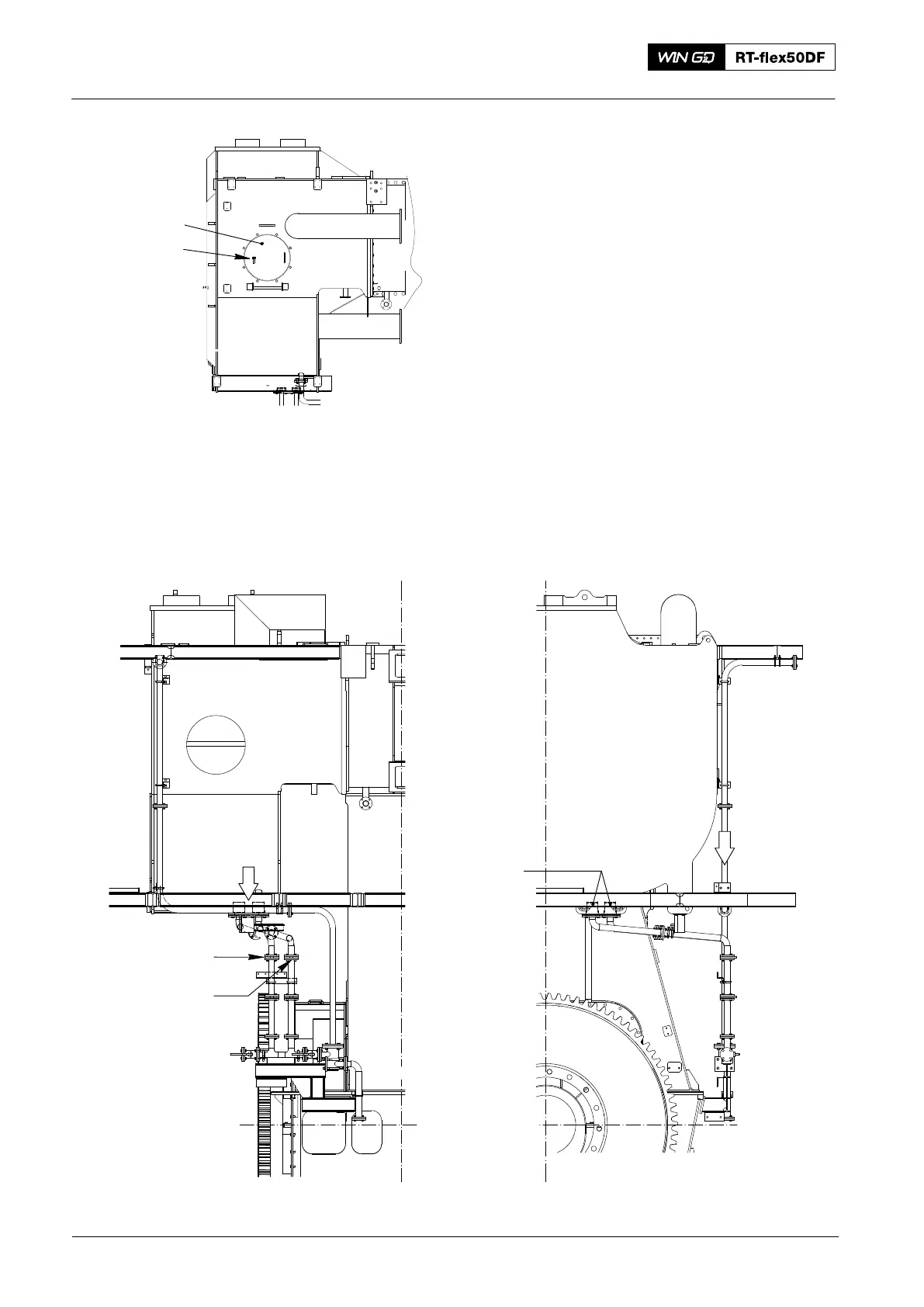
5. Condensate Drain
Make sure that the drains are not blocked,
refer to the Operation Manual 83451.
You must make sure that water flows correctly. Refer to 03801 for the intervals to do
regular checks.
Make sure that the orifices (1, 2 and 3, Fig. 19) in the drain pipes are kept in a clean
condition.
2
3
EXHAUST
SIDE
DRIVING
END
1
WCH00702
Fig. 19
Water Separator: Removal and Installation
2016
x
WCH03010
2
1
Fig. 18

Table of Contents