EasyManua.ls Logo

ECKELMANN UA 400 - Page 33

ECKELMANN UA 400
401 pages
Print Icon
To Next Page IconTo Next Page
To Next Page IconTo Next Page
To Previous Page IconTo Previous Page
To Previous Page IconTo Previous Page
Loading...
Firmware V3.15
21.04.2021
33/401
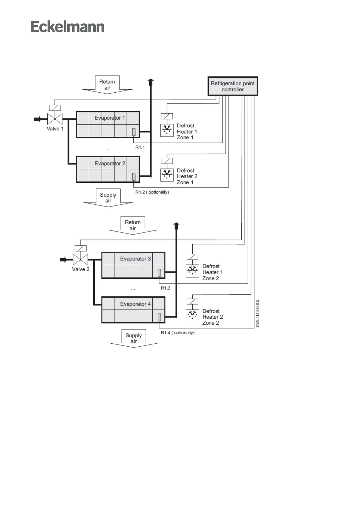
Defrosting in two-zone operation
In two-zone operation, sensors Rx.1 act on Relay 1 and Rx.2 on Relay 2.
R1.x:Defrostsensor(withUA121,UA131,UR141NK/TK,UA131DDthesesensorsareusedfordefrosting)
R2.x: Supply air sensor (UA 111, UA 111 D, UA 141 these sensors are used for defrosting)
Solenoid valve 1: Relay for Solenoid Valve Zone 1
Solenoid valve 2: Relay for Solenoid Valve Zone 2
Defrostheater1to4:RelayforDefrostHeater1to4(dependingoncontrollertype)

Table of Contents

Related product manuals