EasyManua.ls Logo

Lenovo ThinkSystem SR665 V3 - Page 421

Lenovo ThinkSystem SR665 V3
540 pages
To Next Page IconTo Next Page
To Next Page IconTo Next Page
To Previous Page IconTo Previous Page
To Previous Page IconTo Previous Page
Loading...
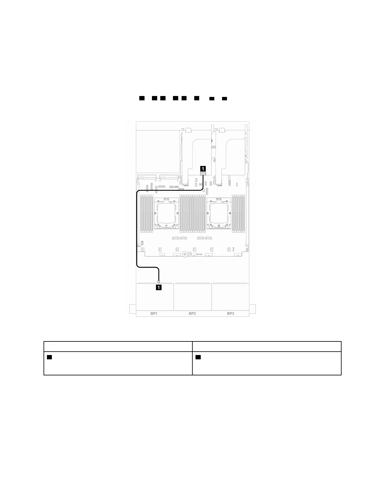
8i RAID/HBA adapter + Three retimer cards
The following shows the cable connection for the front (8 x 2.5-inch AnyBay + 16 x 2.5-inch NVMe)
configuration with one 8i RAID/HBA adapter and three retimer cards.
To connect the processor interconnection cable when two processors are installed, see
“Processor
interconnection cable routing” on page 311
.
Connections between connectors:
1 1 , 2 2 , 3 3 , ... n n
SAS/SATA cable routing
Figure 432. SAS/SATA cable routing to 8i adapter
From To
1 Backplane 1: SAS
1 8i adapter
Gen 4: C0
Gen 3: C0C1
Chapter 6. Internal cable routing 411

Table of Contents

Other manuals for Lenovo ThinkSystem SR665 V3

Related product manuals