EasyManua.ls Logo

Lenovo ThinkSystem SR665 V3 - Page 432

Lenovo ThinkSystem SR665 V3
540 pages
To Next Page IconTo Next Page
To Next Page IconTo Next Page
To Previous Page IconTo Previous Page
To Previous Page IconTo Previous Page
Loading...
To connect the processor interconnection cable when two processors are installed, see “Processor
interconnection cable routing” on page 311
.
Connections between connectors:
1 1 , 2 2 , 3 3 , ... n n
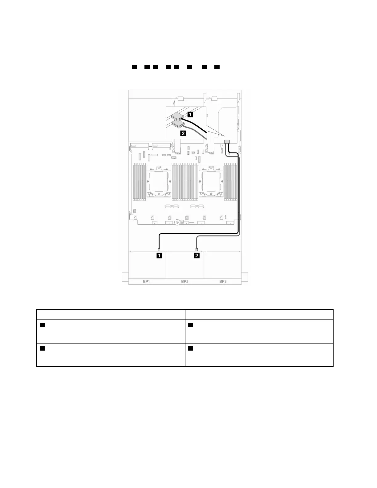
SAS/SATA cable routing
Figure 449. SAS/SATA cable routing to 8i adapters
From To
1 Backplane 1: SAS
1 8i adapter
Gen 4: C0
Gen 3: C0C1
2 Backplane 2: SAS
2 8i adapter
Gen 4: C0
Gen 3: C0C1
422 ThinkSystem SR665 V3 User Guide

Table of Contents

Other manuals for Lenovo ThinkSystem SR665 V3

Related product manuals