EasyManua.ls Logo

Lenovo ThinkSystem SR665 V3 - Page 449

Lenovo ThinkSystem SR665 V3
540 pages
To Next Page IconTo Next Page
To Next Page IconTo Next Page
To Previous Page IconTo Previous Page
To Previous Page IconTo Previous Page
Loading...
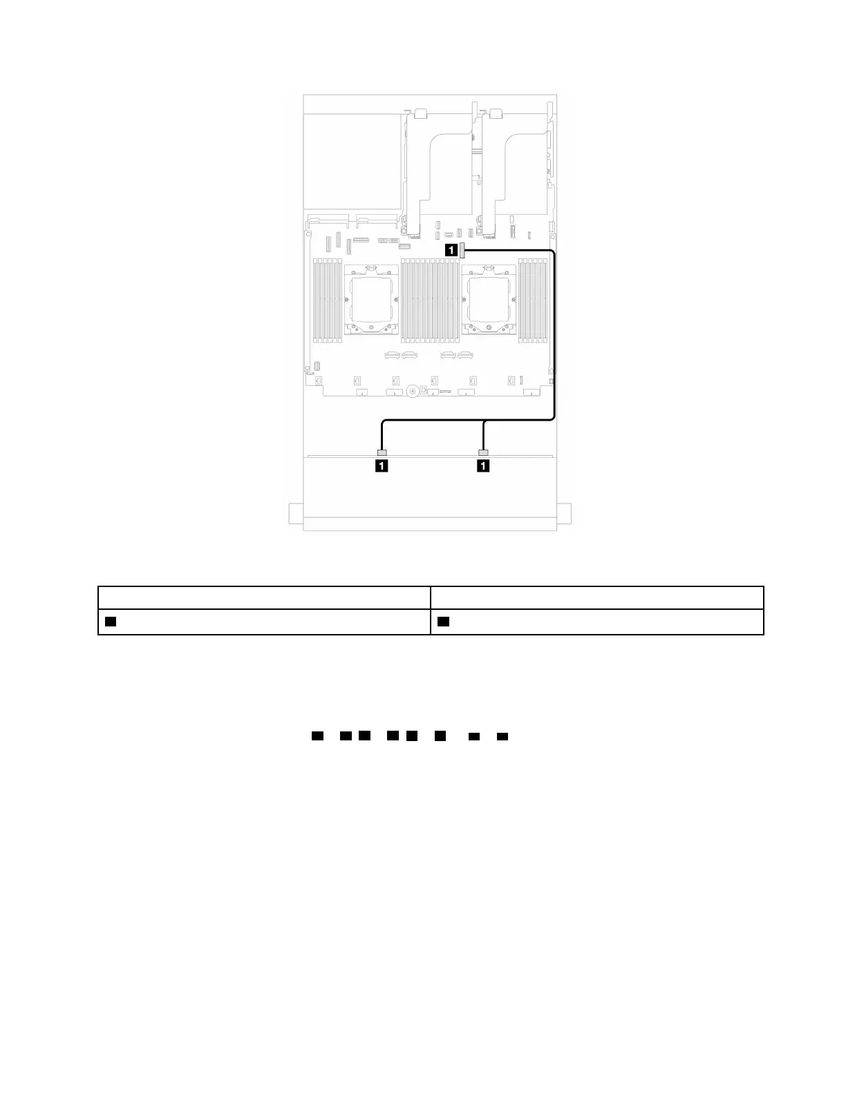
Figure 477. Cable routing to onboard SATA connector
From To
1 Backplane 1: SAS 0, SAS 1 1 Onboard: PCIe 9
8i RAID/HBA adapter
The following shows the cable connections for the front 8 x 3.5-inch SAS/SATA configuration with one 8i
RAID/HBA adapter.
Connections between connectors:
1 1 , 2 2 , 3 3 , ... n n
Chapter 6
. Internal cable routing 439

Table of Contents

Other manuals for Lenovo ThinkSystem SR665 V3

Related product manuals