EasyManua.ls Logo

Piper Warrior III - Page 1018

Piper Warrior III
1104 pages
Print Icon
To Next Page IconTo Next Page
To Next Page IconTo Next Page
To Previous Page IconTo Previous Page
To Previous Page IconTo Previous Page
Loading...
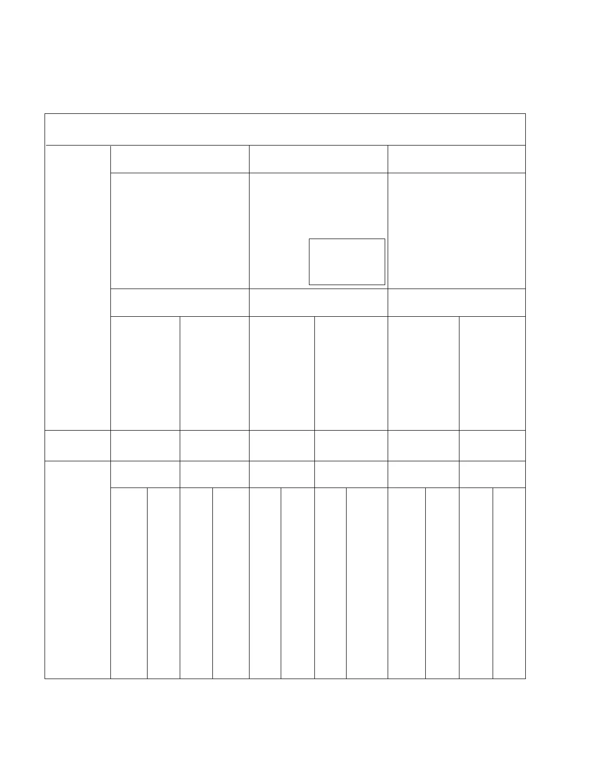
CHART 2 (Sheet 2 of 2)
RECOMMENDED NUT TORQUES
PIPER AIRCRAFT, INC.
PA-28-161, WARRIOR III
MAINTENANCE MANUAL
PAGE 4
Nov 30/06 5G6
91-10-00
FINE THREAD SERIES
BOLTS BOLTS BOLTS
Steel Tension Steel Tension Aluminum
AN 3 THRU AN 20 MS 20004 THRU MS 20024 AN 3DD THRU AN 20DD
AN 42 THRU AN 49 NAS 144 THRU NAS 158 AN 173DD THRU AN 186DD
AN 73 THRU AN 81 NAS 333 THRU NAS 340 AN 509DD
AN 173 THRU AN 186 NAS 583 THRU NAS 590 AN 525D
MS 20033 THRU MS 20046 NAS 624 THRU NAS 644 MS 27039D
MS 20073 NAS 1303 THRU NAS 1320 MS 24694DD
MS 20074 NAS 172
AN 509 NK9 NAS 174
MS 24694 NAS 517
AN 525 NK525
MS 27039
NUTS NUTS NUTS
Steel Tension Steel Shear Steel Tension Steel Shear Alum. Tension Alum. Shear
AN 310 AN 320 AN 310 AN 320 AN 365D AN 320D
AN 315 AN 364 AN 315 AN 364 AN 310D AN 364D
AN 363 NAS 1022 AN 363 NAS 1022 NAS 1021D NAS 1022D
AN 365 MS 17826 AN 365 MS 17826
NAS 1021 MS 20364 MS 17825 MS 20364
MS 17825 MS 20365
MS 21045 MS 21045
MS 20365 NAS 1021
MS 20500 NAS 679
NAS 679 NAS 1291
Nut-bolt Torque Limits Torque Limits Torque Limits Torque Limits Torque Limits Torque Limits
size in-lbs. in-lbs. in-lbs. in-lbs. in-lbs. in-lbs.
Min. Max. Min. Max. Min. Max. Min. Max. Min. Max. Min. Max.
8-36 12 15 7 9 5 10 3 6
10-32 20 25 12 15 25 30 15 20 10 15 5 10
1/4-28 50 70 30 40 80 100 50 60 30 45 15 30
5/16-24 100 140 60 85 120 145 70 90 40 65 25 40
3/8-24 160 190 95 110 200 250 120 150 75 110 45 70
7/16-20 450 500 270 300 520 630 300 400 180 280 110 170
1/2-20 480 690 290 410 770 950 450 550 280 410 160 260
9/16-18 800 1,000 480 600 1,100 1,300 650 800 380 580 230 360
5/8-18 1,100 1,300 660 780 1,250 1,550 750 950 550 670 270 420
3/4-16 2,300 2,500 1,300 1,500 2,650 3,200 1,600 1,900 950 1,250 560 880
7/8-14 2,500 3,000 1,500 1,800 3,550 4,350 2,100 2,690 1,250 1,900 750 1,200
1-14 3,700 4,500 2,200 3,300 4,500 5,500 2,700 3,300 1,600 2,400 950 1,500
1-1/8-12 5,000 7,000 3,000 4,200 6,000 7,300 3,600 4,400 2,100 3,200 1,250 2,000
1-1/4-12 9,000 11,000 5,400 6,600 11,000 13,400 6,600 8,000 3,900 5,600 2,300 3,650
Steel shear bolt
NAS 464

Table of Contents

Related product manuals