EasyManua.ls Logo

Piper Warrior III - BATTERY SWITCH; EXTERNAL POWER

Piper Warrior III
1104 pages
Print Icon
To Next Page IconTo Next Page
To Next Page IconTo Next Page
To Previous Page IconTo Previous Page
To Previous Page IconTo Previous Page
Loading...
PIPER AIRCRAFT, INC.
PA-28-161, WARRIOR III
MAINTENANCE MANUAL
PAGE 1
Nov 30/06
5H19
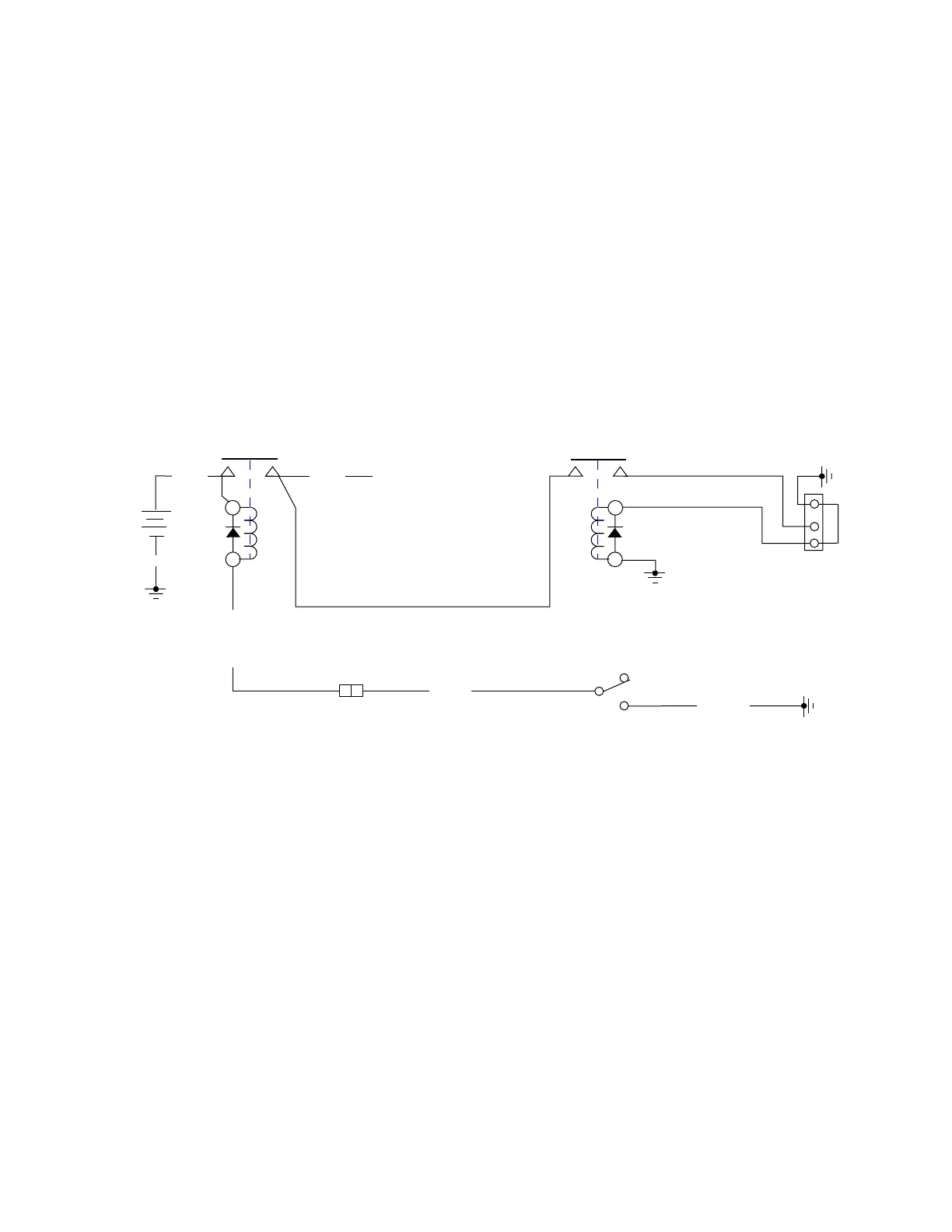
91-24-40
External Power
Figure 1
TO STARTER
CONTACTOR
EXTERNAL POWER
CONTACTOR
P1D 4
4
P1C 4
BATTERY
CONTACTOR
EXTERNAL
POWER
RECEPTACLE
+
-
P4AA 20
P4A 20
4
P2 R2
4
1
2
3
BATTERY
SWITCH
OFF
ON
P4B20N
85423 F
104295 F

Table of Contents

Related product manuals