EasyManua.ls Logo

Piper Warrior III - Page 1077

Piper Warrior III
1104 pages
Print Icon
To Next Page IconTo Next Page
To Next Page IconTo Next Page
To Previous Page IconTo Previous Page
To Previous Page IconTo Previous Page
Loading...
PIPER AIRCRAFT, INC.
PA-28-161, WARRIOR III
MAINTENANCE MANUAL
PAGE 3
Nov 30/06
5I17
91-33-10
L6D20
L6C20
L6E20N
1
2
1
2
L
LIGHT
DOME/READ
CONTACTOR
6 GA.
+
-
PWR
EXT
RECEPT
EXT PWR
L9C20
2
1
2
1
L9E20N
L9D20
FLOOD LT CONTROL
FLOOD LT
L2B20
WHT
BLK
W
BATT
P1D4
5A
CONT
5A
J300
L5G18
F1C20
Q3A20
RZ1B20
L1C18
L3G18
L2D20
L9G20
L9D20
LIFT DETECTOR
STROBE
L FUEL QTY
R FUEL QTY
NAV LTS
R LDG/RECOG LT
CABIN OVERHEAD PANEL
Q4A20
1
2
CABIN
SPEAKER
L1G20
VERTICAL STAB
FIN TIP
OPT NAV LIGHT
R FUSELAGE WING
SPAR BOX (FS 128.737)
5
6
4
2
3
1
Q-102
MJ11016
.047 MFD
C102
5.6 K
R104
R103
5.6 K
ANNUN DIMMER ASS'Y
Q-101
MJ11015
R101
5.6 K
R102
.047 MFD
5.6 K
C101
L6B18
P302
MAIN
BATTERY
M1B20
P4A20
EMPENNAGE
PITOT HEAT
STATIC HEAT
H1D16
H2D16
31
17
L4D18
P328
P1D4N
LIGHTS
L LDG/RECOG LT
R NAV LT
2
1
L5H18N
2
1
3
J329
J330
1
2
3
4
7
6
5
22
25
24
20
23
26
35
34
15
1
28
30
16
8
27
13
12
11
10
W1B20
W3B20
W4B20
W5B20
W9B20
COURTESY
LIGHT
L11B20
L11C20
8
8
AWG-20
9
L1E18
J331
P1C4
LIGHTS
STROBE
AWG-20
9
P411
P412
P303-10 *
P304-10 **
3
L2E20
P4A20
L9D20
M1B20
AFT EQUIP SHELF
W12A20N
L11A20
M1A20
TO
STARTER
CONTACTOR
(SEE 91-24-30,
FIGURE 1,
SHEET 2)
101902-SHT 6-U
* SEE 91-77-40, FIGURE 1, SHEET 1
** SEE 91-77-40, FIGURE 1, SHEET 2
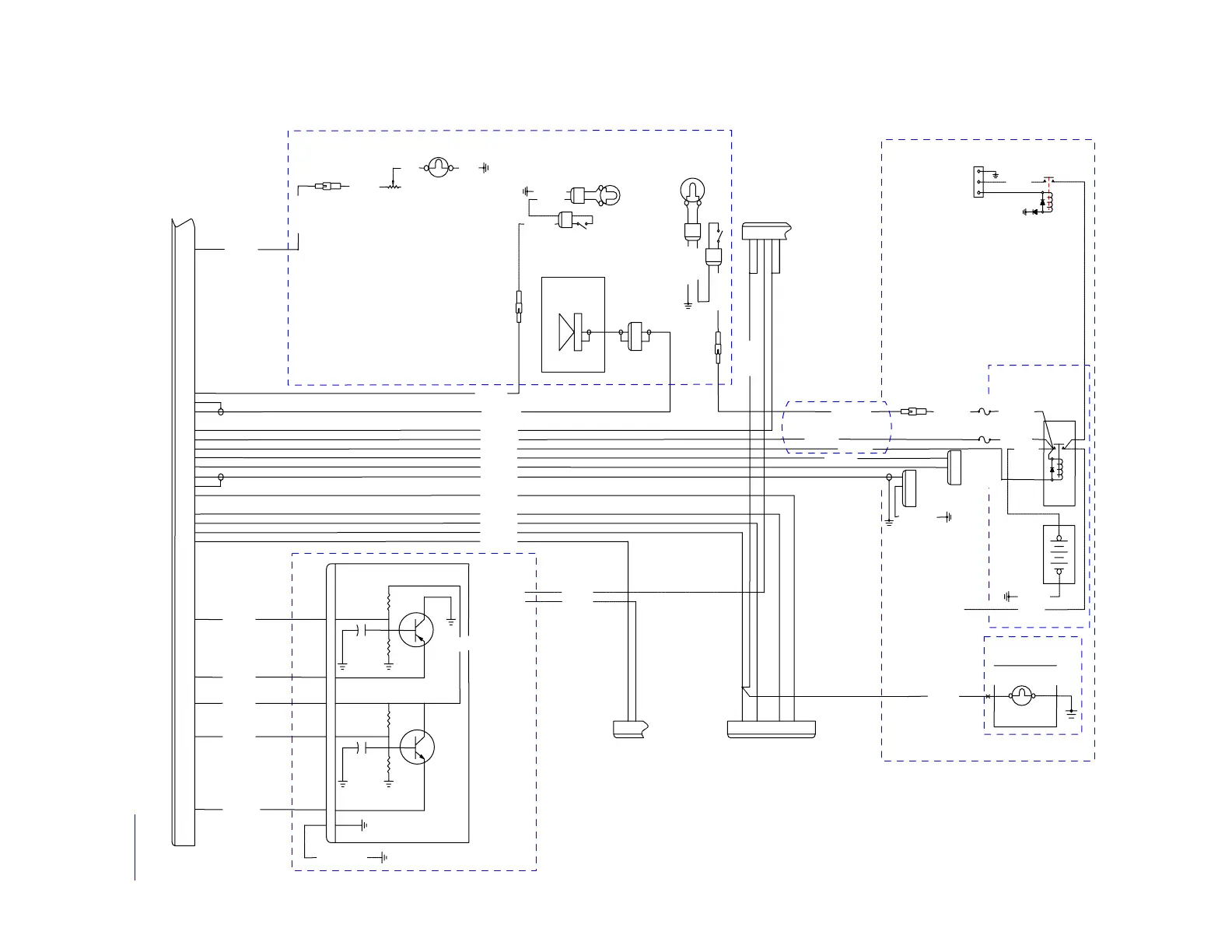
Overhead Lights
Figure 2 (Sheet 2 of 2)
Effectivity
with Avidyne Entegra

Table of Contents

Related product manuals