EasyManua.ls Logo

RFL IMUX 2000 - 3.1.6 REDUNDANT MODE STATUS INDICATORS.

RFL IMUX 2000
1105 pages
Print Icon
To Next Page IconTo Next Page
To Next Page IconTo Next Page
To Previous Page IconTo Previous Page
To Previous Page IconTo Previous Page
Loading...
Because RFL and Hubbell® have a policy of continuous product improvement, we reserve the right to change designs and specications without notice.
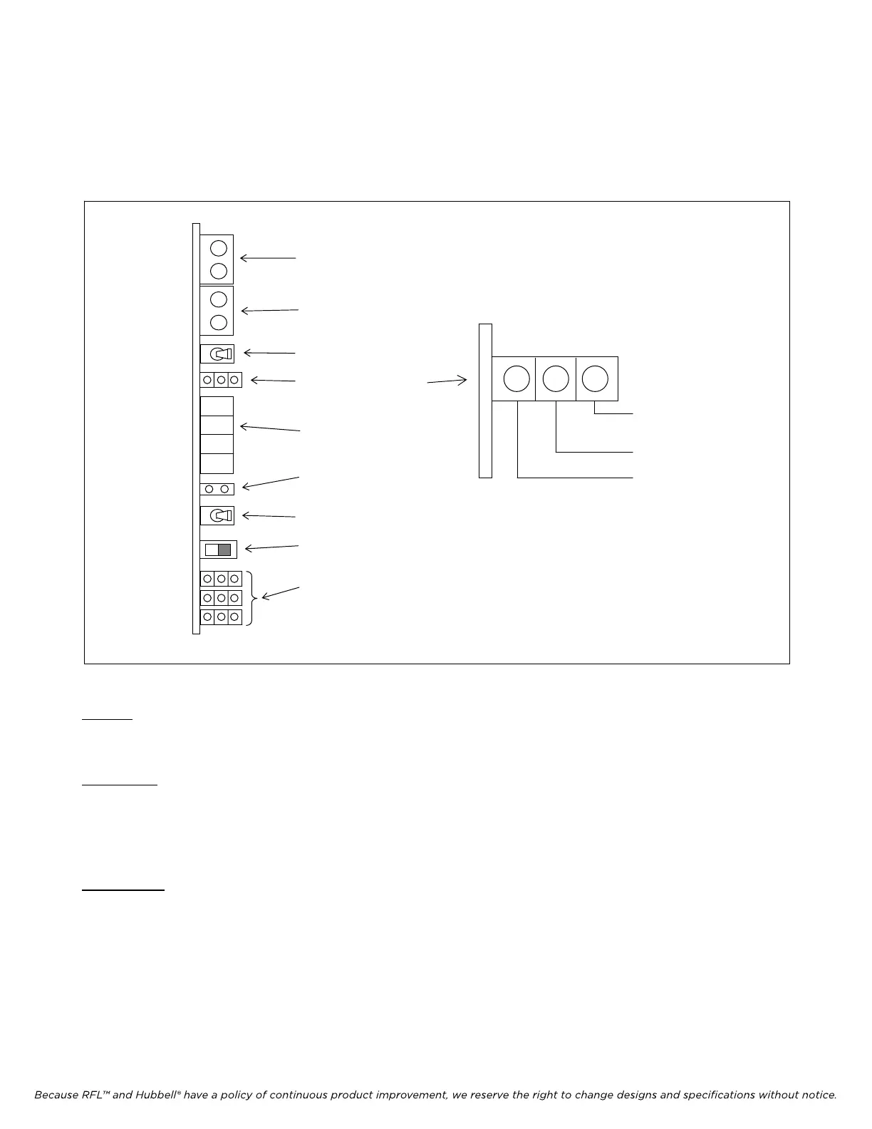
3.1.6 REDUNDANT MODE STATUS INDICATORS.
Front-panel LED indicators convey information on the current state of a Redundant-Mode system.
Three LED indicators represent the state of the module on which they are located, as shown in Figure
3-5.
Equip Mon Equip Mon Group CONFIG FUNCTION ON SET R-MAIN EXT ERR FRM
E1 Out E1 In BRD OK OFF NEXT C-AUTO INT LPBK BPV
ACTIVE L-SLAVE LOOP TX RX
M
O
DE
E1 OUTPUT
TEST JACKS
E1 INPUT
TEST JACKS
GROUP SWITCH
ACTIVITY INDICATORS
4-CHARACTER
FUNCTION DISPLAY
ON/OFF BI-LEVEL
DISPLAY
SET/NEXT SWITCH
3-POSITION
MODE SLIDE SWIT
CH
FRONT PANEL
LED INDICATORS
Configured
Board OK / Booting
Active
Figure 3-5. CM4 activity indicators
Active:
The LED Indicator is lit when the Common Module is active (driving the backplane signals).
Board OK:
The LED Indicator is lit when the Common Module determines that its on-board functions are
operating properly. The Indicator blinks during initial power-up boot delay, during which no
redundant-mode operation takes place.
Configured:
The LED Indicator is lit when the inactive Common Module receives its first complete
configuration set after power-up, or after becoming inactive due to a swap. An active module is
by definition configured and its indicator is always lit.
The Current state of a CM4 Common Module can also be determined over a network management link
(RS-232 or NCM[E1]).
IMUX 2000E1 RFL Electronics Inc.
January 23, 2004 3-8 (973) 334-3100

Table of Contents

Other manuals for RFL IMUX 2000

Related product manuals